Zu Verkaufen €249.000 - Reiheneckhaus
Objektbeschreibung
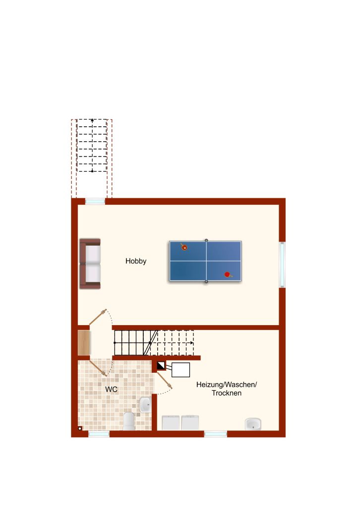
Das erst 1980 bezogene Haus besteht aus 2 Vollgeschossen zzgl. Vollkeller und Satteldach (Stauraum). Im EG befinden sich neben der Eingangsdiele nebst Garderobenbereich eine schöne Wohnküche, Wohn- und Essbereich mit Terrassen- und Gartenzugang sowie ein Gäste-WC. Im OG finden Sie 3 Zimmer sowie ein Wannen-/Duschbad. Der Vollkeller bietet eine Waschküche, einen Hausanschluss-/Vorratsraum sowie einen großen Hobbyraum mit Gartenzugang.
Das sehr gepflegte Haus befindet sich weitestgehend im Zustand des Baujahres (die Heizung wurde bereits 2012 durch eine hochwertige Vaillant-Gasbrennwert ausgetauscht). Wir schätzen die erforderlichen Investitionen für Bäder, WC, Fenster sowie Haus- und Innentüren auf gut 70.000 EUR. Dafür haben Sie die Möglichkeit, alles ganz nach Ihrem persönlichen Geschmack zu gestalten.
Eine Garage gehört selbstverständlich dazu; zudem ist der Garten auch von außen zugänglich.
Lage
Zwischen Platte Heide und Bösperde, in einem reinen Wohngebiet, nur über einen Fußweg zu erreichen (Be- und Entladen möglich). Schulen, Geschäfte des täglichen Bedarfs … sind in 5 PKW-Minuten zu erreichen.
Weiter Details
- Grundstücksfläche: 305 m²
- Zimmer insgesamt: 4
- Heizungsart: Zentralheizung
- Anzahl Etagen: 2,0
- Kaufpreis: 249.000 €
- Courtage: 3.57 %
- Anzahl Garagenstellplätze: 1
- Nutzfläche: 54 m²
- Separate WCs: 2
- Terrassen: 1
- Wohneinheiten: 1
- Art der Ausstattung: Standard
- Befeuerung: Gas
- Badausstattung: Dusche, Badewanne, Fenster im Badezimmer
- Stellplatzart: Garage
- Baujahr: 1979
- Zustand: gepflegt
- Letzte Modernisierung: 2012
- Immobilie ist verfügbar ab: 6 Wochen nach Kauf
Wichtiger Hinweis
Die auf dieser Website dargestellten Immobilienangebote stammen teilweise von externen Maklerunternehmen innerhalb der Westdeutsche Immobilienbörse e.V. - Partnergemeinschaft und werden automatisiert über eine Schnittstelle eingebunden. Die Xcorp Immobilien GmbH ist in diesen Fällen nicht Anbieterin im Rechtssinne, sondern stellt lediglich die technische Plattform zur Verfügung. Für die Richtigkeit, Vollständigkeit und Aktualität der Angaben übernimmt die Xcorp Immobilien GmbH keine Verantwortung.














