Zu Verkaufen €438.000 - Bauernhaus
Objektbeschreibung
Sie wünschen sich einen Rückzugsort auf dem Land? Sie möchten ein Nest für sich und Ihre Familie? Sie spüren die Sehnsucht nach Naturverbundenheit und Ruhe? Dann bieten wir Ihnen das passende Immobilienangebot.
Die Immobilie liegt idyllisch im Außenbereich und bietet Ihnen eine Oase der Ruhe und Entspannung. Auf einem großzügigen Grundstück von ca. 3.122 m² eröffnet sich Ihnen eine Welt voller Möglichkeiten. Hier können Sie Ihrer Kreativität freien Lauf lassen, sei es für einen üppigen Blumengarten oder einen Nutzgarten. Ebenso haben Sie genügend Platz, um in Ihrer Freizeit zu Werkeln. Das Grundstück bietet nicht nur viel Platz für Ihre Hobbys, sondern ist auch ideal für die Tierhaltung. Ob Hunde, Katzen oder vielleicht sogar ein paar Hühner , hier finden Ihre tierischen Freunde ausreichend Platz zum Spielen und Entfalten.
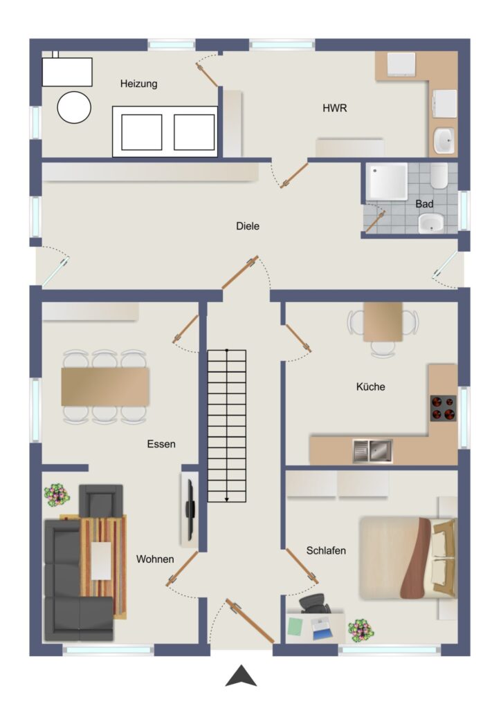
Das Haus selbst bietet Ihnen auf zwei Etagen ca. 140 m² Wohnfläche mit insgesamt 5 Zimmern, die sich ideal für Familien eignen. Im Erdgeschoss sind das Wohnzimmer, ein Schlafzimmer und die Küche untergebracht. Über eine großzügige Diele gelangen Sie in den Hauswirtschaftsraum und in das Badezimmer, welches ist mit einer Dusche ausgestattet ist.
Im Obergeschoss erwarten Sie zwei Schlafzimmer. Hier stehen Ihnen Ausbaureserven zur Verfügung. Zusätzlich stehen Ihnen ein Schuppen und ein Garagenhaus zur Verfügung, die als Unterstand oder Werkstatt dienen können. Hier können Sie Ihre handwerklichen Projekte verwirklichen, die Autos unterstellen oder einfach nur die Gartengeräte unterbringen.
Das Ursprungsbaujahr wird aus Erzählungen auf ca. 1870 geschätzt. Nach Kriegseinwirkungen wurde das Haus 1946 wieder aufgebaut. Die Immobilie erfuhr von 2003 bis 2005 zahlreiche Sanierungen. So wurde das Dach gedämmt und neu eingedeckt. Isolierverglaste Kunststofffenster wurden eingebaut und die Elektrik erneuert. Ebenfalls wurde eine Ölzentralheizung eingebaut, das Warmwasser wird über Solarthermie unterstützt. Im Erdgeschoss ist teilweise Fußbodenheizung verlegt. Das Abwasser wird über die voll biologische Kläranalage abgeführt. Die Wasserversorgung erfolgt über das öffentliche Netz.
Dieses Haus ist mehr als nur ein Wohnort, es ist ein Ort, an dem Träume wachsen und Erinnerungen entstehen. Lassen Sie sich von der Idylle und der Weite der Felder verzaubern!
Lage
Zwischen Feldern und Wiesen liegt dieses ehemalige Bauernhaus, völlig ruhig mit nur einem direkten Nachbarn im Außenbereich der Gemeinde Sonsbeck. Die Grüne Perle am Niederrhein bietet ca. 9.000 Menschen (mit Ortsteilen) eine hervorragende Infrastruktur mit allen Dingen für den täglichen Bedarf. Die Region verfügt über ein umfangreiches und interessantes Kultur-/und Freizeitangebot. Insbesondere der Wallfahrtsort Kevelaer und die historische Stadt Xanten bieten viele Möglichkeiten. Die Nähe zur niederländischen Grenze mit guter Autobahnanbindung und dem Flughafen Niederrhein in Weeze, bieten eine gute Anbindung für Freunde und Geschäftspartner.
Eine ideale Verkehrsanbindung, mit den Autobahnen A57 und A42 in die angrenzenden Niederlande und die Ballungszentren des Ruhrgebietes, ist vorhanden. Der Bahnhof in Xanten ist ca. 18 Min. entfernt.
4,0 km (6 Min.) zum Sportpark Sonsbeck
4,1 km (5 Min.) zur Stadtverwaltung
4,1 km (5 Min.) Lebensmitteldiscounter K&K
4,6 km (7 Min.) Adler-Apotheke
4,7 km (8 Min.) DRK-Kindergarten
4,8 km (9 Min.) Gemeinschaftsgrundschule
5,6 km (7 Min.) zur Auffahrt A57 in Sonsbeck
11,8 km (13 Min.) zur Stadt Xanten
12,7 km (18 Min.) Zentrum Kevelaer
20,4 km (23 Min.) Flughafen Weeze
36,0 km (42 Min.) Venlo NL
41,0 km (46 Min.) Venray NL
68,0 km (52 Min.) Zentrum Düsseldorf
Ausstattung
– isolierverglaste Kunststofffenster
– Rollos
– HWR u. zweite Küche
– Holzdielenböden, Fliesenböden,
– Ausbaureserve
– 1 Bad mit Dusche
– Ölzentralheizung 2005
– zwei Garagen
– Außenstellplätze
– biologische Kläranlage
– überdachte Terrasse
– Werkstatt u. Garagenhaus
– Glasfaseranschluss liegt in der Straße
Weiter Details
- Grundstücksfläche: 3.122 m²
- Zimmer insgesamt: 5
- Heizungsart: Zentralheizung
- Anzahl Etagen: 2,0
- Kaufpreis: 438.000 €
- Courtage: 3.57 %
- Nutzfläche: 70 m²
- Terrassen: 1
- Wohneinheiten: 1
- Befeuerung: Öl
- Bodenbelag: Dielen
- Badausstattung: Dusche
- Baujahr: 1946
- Zustand: gepflegt
- Letzte Modernisierung: 2005
- Immobilie ist verfügbar ab: nach Vereinbarung
Wichtiger Hinweis
Die auf dieser Website dargestellten Immobilienangebote stammen teilweise von externen Maklerunternehmen innerhalb der Westdeutsche Immobilienbörse e.V. - Partnergemeinschaft und werden automatisiert über eine Schnittstelle eingebunden. Die Xcorp Immobilien GmbH ist in diesen Fällen nicht Anbieterin im Rechtssinne, sondern stellt lediglich die technische Plattform zur Verfügung. Für die Richtigkeit, Vollständigkeit und Aktualität der Angaben übernimmt die Xcorp Immobilien GmbH keine Verantwortung.
























