Zu Verkaufen €229.000 - Erdgeschosswohnung
Objektbeschreibung
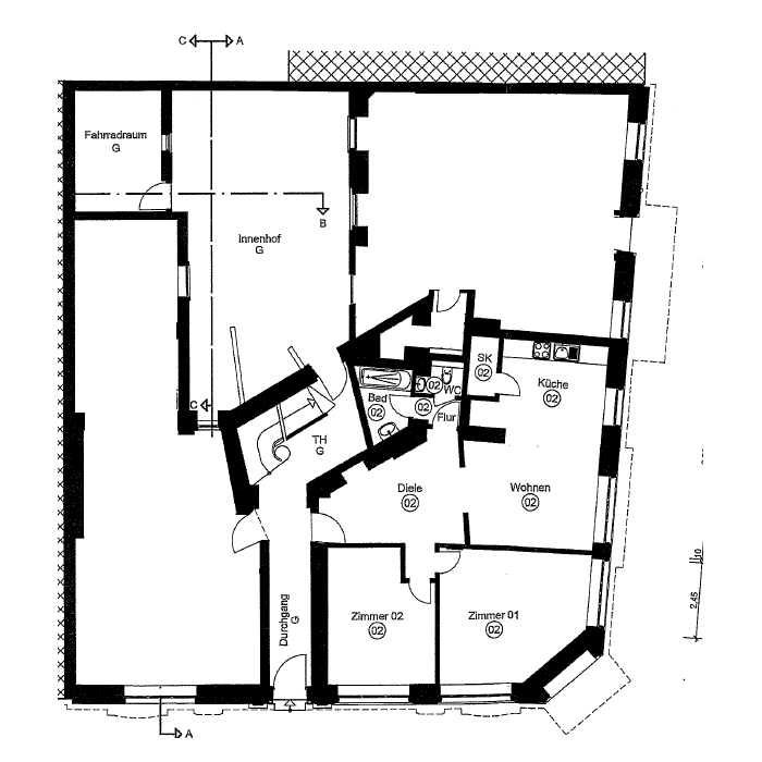
Die angebotene 3-Zimmer-Eigentumswohnung befindet sich im Erdgeschoss eines denkmalgeschützten Mehrparteienhauses.
Die Wohnfläche von 82,15 m² verteilt sich wie folgt:
*Wohnzimmer (14,31 m²),
*Schlafzimmer 1 (19,01 m²),
*Schlafzimmer 2 (14,31 m²),
*Küche (12,34 m²),
*Diele (14,09 m²),
*Flur (1,29 m²),
*Bad (3,50 m²),
*WC (1,48 m²),
*Speisekammer (1,81 m²).
Das Wohnzimmer ist gleichzeitig das Durchgangszimmer zwischen Diele und Küche.
Falls Ihnen die Fläche nicht ausreicht, so können Sie alternativ auch zusätzlich die Nachbarwohnung erwerben, welche rd. 61 m² groß ist. Während die hier angebotene Wohnung derzeit vermietet ist, ist die ebenfalls zum Verkauf stehende Nachbarwohnung ab sofort bezugsfrei.
Ihrer neuen Eigentumswohnung sind folgende Sondernutzungsrechte zugeordnet:
*Kellerraum
Die Miteigentumsanteile belaufen sich auf 85,77 von 1.000.
Die Instandhaltungsrücklage der Eigentümergemeinschaft betrug zum 31.12.2023: 10.420,77 €. Der Anteil dieser Wohnung an der Gesamt-Instandhaltungsrücklage des Gebäudes beträgt 893,86 € (Stand 31.12.2023).
Das monatliche Hausgeld für das Wirtschaftsjahr 2024 betrug 364,32 €. Hiervon können rd. 234 € auf die Mieter umgelegt werden. Die übrigen, nicht-umlagefähigen rd. 130 € setzen sich zusammen aus Verwaltergebühr (rd. 29 €), Reparaturen & Bankgebühren (rd. 30 €) und Zuführung in die Instandhaltungsrücklage (rd. 71 €).
Hinweis: Für denkmalgeschützte Gebäude können unter bestimmten Voraussetzungen gemäß § 7i EStG steuerliche Abschreibungsmöglichkeiten bestehen. Bitte lassen Sie sich hierzu individuell von Ihrem Steuerberater beraten.
Lage
Dieses denkmalgeschützte Gebäude befindet sich im lebendigen und zugleich aufstrebenden Stadtteil Mülheim. Der Standort besticht durch eine perfekte Mischung aus urbanem Flair und entspannter Wohnatmosphäre. Zahlreiche Einkaufsmöglichkeiten, Cafés und Restaurants sind bequem zu Fuß erreichbar, wodurch das Viertel besonders attraktiv wird.
Mülheim ist bekannt für seine lebendige Kunst- und Kulturszene, was es zu einem idealen Umfeld für Kulturliebhaber macht. Die Anbindung an den öffentlichen Nahverkehr ist hervorragend, mit mehreren Bus- und Bahnlinien in unmittelbarer Nähe, die schnelle Verbindungen in alle Stadtteile bieten. Pendler profitieren zudem von der Nähe zu den Autobahnen.
Für Naturfreunde bietet die Nähe zum Rhein sowie zu Parks und Grünflächen viele Möglichkeiten zur Erholung und Freizeitgestaltung. Die optimale Lage des Gebäudes verbindet die Vorzüge des urbanen Lebens mit einer hohen Lebensqualität und vielfältigen Freizeitangeboten.
Ausstattung
Die Wohnung ist seit dem 01.06.2018 vermietet. Da es sich um den Erstverkauf nach Umwandlung zu Wohnungseigentum handelt, greift hier die sogenannte Kündigungssperrfrist. Diese besagt, dass eine Eigenbedarfskündigung erst nach Ablauf von 8 Jahren nach Umschreibung im Grundbuch unter Einhaltung der gesetzlichen Fristen erfolgen darf. Für die Richtigkeit der Angaben können wir keine Gewähr übernehmen.
Überzeugen Sie sich selbst:
+ Erdgeschoss
+ Eigene neuwertige Gastherme
+ Denkmalschutz
+ solide vermietet
+ Kellerraum
+ große Räume
+ höhe Decken
+ Speisekammer
+ modernes, weißes Bad
+ WC separiert
+ potenzielle steuerliche Vorteile nach § 7i EStG bei anerkannten Sanierungskosten – vorbehaltlich steuerlicher Prüfung durch den Berater
– Kein zugeordneter PKW-Stellplatz. Kostenlose Parkmöglichkeiten in der direkten Nähe
– Kein Balkon
– 8 Jahre Kündigungssperrfrist – Wohnung kann nicht kurzfristig aus Eigenbedarf genutzt werden
Weiter Details
- Zimmer insgesamt: 3
- Heizungsart: Etagenheizung
- Hausgeld: 364,32 €
- Kaufpreis: 229.000 €
- Courtage: 3,57% inkl. MwSt. vom beurkundeten Kaufpreis
- Separate WCs: 1
- Befeuerung: Gas
- Baujahr: 1902
Wichtiger Hinweis
Die auf dieser Website dargestellten Immobilienangebote stammen teilweise von externen Maklerunternehmen innerhalb der Westdeutsche Immobilienbörse e.V. - Partnergemeinschaft und werden automatisiert über eine Schnittstelle eingebunden. Die Xcorp Immobilien GmbH ist in diesen Fällen nicht Anbieterin im Rechtssinne, sondern stellt lediglich die technische Plattform zur Verfügung. Für die Richtigkeit, Vollständigkeit und Aktualität der Angaben übernimmt die Xcorp Immobilien GmbH keine Verantwortung.





















