Zu Vermieten €1.100 - Verkaufsfläche
Objektbeschreibung
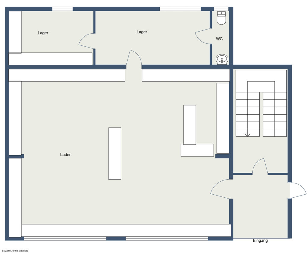
Die zur Miete stehenden Verkaufsflächen, mit einem großem Verkaufsraum, zwei Lagerräumen und WC verfügen über zwei Parkplätze und bietet damit ausreichend Platz für Kunden und Mitarbeiter. Das Gebäude ist solide gebaut und gut in Schuss, so dass es sich ideal für den Betrieb eines Ladengeschäfts oder Büros eignet.
Die Räumlichkeiten sind großzügig geschnitten und bieten viel Platz für individuelle Gestaltungsmöglichkeiten. Große Schaufenster sorgen für eine angenehme Atmosphäre und lassen viel Tageslicht herein. Der offene Grundriss ermöglicht eine flexible Nutzung der Fläche und bietet genügend Raum für Produktpräsentationen oder Arbeitsplätze.
Die zentrale Lage des Gebäudes ermöglicht eine gute Erreichbarkeit und eine hohe Kundenfrequenz, was sich positiv auf den Geschäftsbetrieb auswirken kann.
Insgesamt handelt es sich um eine attraktive Immobilie mit vielen Möglichkeiten zur individuellen Nutzung.
Lage
Die Verkaufsfläche befindet sich in Zentrum von Ründeroth, einem charmanten Ortsteil von Engelskirchen im Bergischen Land. Ründeroth liegt südlich von Köln und gilt als beliebte Gegend mit einer malerischen Landschaft und einem historischen Ortskern. In unmittelbarer Umgebung der Immobilie finden weitere Parkplätze und öffentliche Verkehrsmittel, die eine gute Anbindung an die umliegenden Städte gewährleisten.
Die Region Bergisches Land ist bekannt für ihre natürliche Schönheit und ihre vielfältigen Freizeitmöglichkeiten. Mit zahlreichen Wander- und Radwegen, historischen Fachwerkhäusern und idyllischen Ortschaften bietet das Bergische Land Erholungssuchenden und Naturliebhabern eine ideale Umgebung. Durch die gute Verkehrsanbindung ist die Region zudem gut erreichbar und bietet sowohl Einheimischen als auch Touristen eine Vielzahl an Möglichkeiten zur Freizeitgestaltung.
Ausstattung
Die Immobilie verfügt über einen großen Verkaufsraum, zwei Lagerräume und ein WC.
2 PKW Stellplätze gehören zum Ladenlokal, weitere sind in der Fußläufigen Umgebung vorhanden.
Weiter Details
- Zimmer insgesamt: 3
- Anzahl Stellplätze: 2
- Heizungsart: Etagenheizung
- Anzahl Etagen: 1,0
- Etage: 1
- Kaltmiete: 1.100 €
- monatl. Betriebs-/Nebenkosten: 200 €
- Kaution: 2200
- Anzahl Außenstellplätze: 2
- Außenstellplatzmiete: 25 €
- Nutzfläche: 110 m²
- Gesamtfläche: 112 m²
- Verkaufsfläche: 98 m²
- Separate WCs: 1
- Befeuerung: Gas
- Stellplatzart: Freiplatz
- Baujahr: 1977
- Immobilie ist verfügbar ab: Nach Vereinbarung
Wichtiger Hinweis
Die auf dieser Website dargestellten Immobilienangebote stammen teilweise von externen Maklerunternehmen innerhalb der Westdeutsche Immobilienbörse e.V. - Partnergemeinschaft und werden automatisiert über eine Schnittstelle eingebunden. Die Xcorp Immobilien GmbH ist in diesen Fällen nicht Anbieterin im Rechtssinne, sondern stellt lediglich die technische Plattform zur Verfügung. Für die Richtigkeit, Vollständigkeit und Aktualität der Angaben übernimmt die Xcorp Immobilien GmbH keine Verantwortung.







