Zu Verkaufen €259.000 - Grundstück (Wohnbebauung)
Objektbeschreibung
Zum Verkauf steht ein attraktives, 466 m² großes Grundstück in ruhiger, aber verkehrsgünstiger Lage im beliebten Krefelder Stadtteil Hüls.
Das Grundstück überzeugt durch seinen praktischen Zuschnitt und bietet eine hervorragende Grundlage für verschiedene Bauvorhaben von einem modernen Mehrfamilienhaus bis hin zu einem individuell geplanten Einfamilienhaus.
Bauvorhaben:
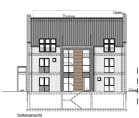
Für das Grundstück liegt bereits eine Baugenehmigung für den Bau eines unterkellerten, 2,5-geschossigen 3-Parteien-Hauses vor, das einseitig an ein Nachbargebäude angebaut wird. Die geplante Wohnfläche beträgt ca. 262 m². Zusätzlich sind ein Carport mit drei KFZ-Stellplätzen, fünf Fahrradstellplätze sowie ein Spielplatz im hinteren Grundstücksbereich genehmigt.
Alternativ besteht die Möglichkeit, im Rahmen einer Bauvoranfrage die Realisierbarkeit eines Einfamilienhauses zu prüfen. Diese Option eröffnet besonders Familien oder Eigennutzern individuelle Gestaltungsspielräume.
Fazit:
Durch die bestehende Baugenehmigung können Bauherren und Investoren sofort mit dem Bau starten. Gleichzeitig erlaubt die Option einer Bauvoranfrage auch privaten Interessenten, ein passendes Einfamilienhaus zu planen. Die Lage in Krefeld-Hüls einem familienfreundlichen und nachgefragten Stadtteil macht das Grundstück besonders attraktiv für vielfältige Nutzungskonzepte.
EnEv: Keine Energieausweispflicht
Lage
Das Grundstück befindet sich in einem ruhigen, gewachsenen Wohngebiet im Stadtteil Krefeld-Hüls, direkt gegenüber einer städtischen Grünfläche. Diese Lage zeichnet sich durch eine angenehme, grüne Umgebung aus und bietet eine hohe Lebensqualität. Die Umgebung besteht hauptsächlich aus Wohngebäuden und kleinen Gewerbebetrieben, was zu einer ruhigen und dennoch gut erreichbaren Wohngegend führt.
Einkaufsmöglichkeiten, Schulen und öffentliche Verkehrsmittel sind in unmittelbarer Nähe und sorgen für eine komfortable Infrastruktur. Die Nähe zu Naherholungsgebieten, wie dem Hülser Bruch, bietet zahlreiche Freizeitmöglichkeiten und trägt zur hohen Lebensqualität bei.
Die gute Anbindung an das Verkehrsnetz ermöglicht eine schnelle Erreichbarkeit des Krefelder Stadtzentrums sowie umliegender Städte wie Düsseldorf, was den Standort sowohl für Familien als auch für Berufspendler besonders attraktiv macht.
Weiter Details
- Grundstücksfläche: 466 m²
- Kaufpreis: 259.000 €
- Courtage: 3.57 %
- Zustand: Erstbezug
Wichtiger Hinweis
Die auf dieser Website dargestellten Immobilienangebote stammen teilweise von externen Maklerunternehmen innerhalb der Westdeutsche Immobilienbörse e.V. - Partnergemeinschaft und werden automatisiert über eine Schnittstelle eingebunden. Die Xcorp Immobilien GmbH ist in diesen Fällen nicht Anbieterin im Rechtssinne, sondern stellt lediglich die technische Plattform zur Verfügung. Für die Richtigkeit, Vollständigkeit und Aktualität der Angaben übernimmt die Xcorp Immobilien GmbH keine Verantwortung.







