Zu Verkaufen €347.000 - Produktion
Objektbeschreibung
Hier entsteht ein Gewerbepark. Zum Kauf bieten wir in einer Gewerbehalle auf einem ehemaligen Bundeswehrgelände Gewerbeteilflächen an. Die vermietete Halle soll aufgeteilt werden und die Flächen können ab 2027 selbst genutzt werden.
Geplant ist die Umwandlung einzelner Gewerbeflächen in Miteigentumsanteile. Aktuell ist die Gewerbehalle an einen Mieter bis April 2027 mit 1-jähriger Verlängerungsoption vermietet. Eine Eigennutzung könnte dann stattfinden. Die aktuellen Mieteinnahmen von ca. 19.000 /mtl. würden dann für diesen Zeitraum anteilig an die Miteigentümer ausgezahlt (ca. 3,50,- EUR/m²).
Im Jahr 1954 erbaut, wurde die Immobilie seit 2000 auf Grund von Umnutzungen laufend modernisiert. Die Stahlrahmenkonstruktion der Halle bietet Flexibilität. Die hier genannten Nutzflächen orientieren sich an die baulichen Brandabschnitte.
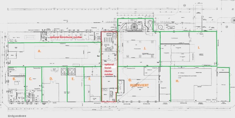
A. ca. 722 m² – Kaufpreis 389.000,- EUR
B. ca. 200 m² (mit Büro u. Sozialräume) – Kaufpreis 144.000,- EUR
C. ca. 200 m² (mit Büro u. Sozialräume) – Kaufpreis 144.000,- EUR
D. ca. 300 m² – Kaufpreis 162.000,- EUR
E. ca. 200 m² – Kaufpreis 108.000,- EUR
F. ca. 200 m² – Kaufpreis 108.000,- EUR
G. Reserviert
H. ca. 643 m² – Kaufpreis 347.220,- EUR
I. ca. 650 m² – Kaufpreis 351.000,- EUR
J. ca. 600 m² – Kaufpreis 360.000,- EUR
Die Gewerbehalle dient aktuell als Produktionshalle für Backwaren. Die technische Ausstattung entspricht den heutigen Anforderungen einer modernen Gewerbehalle, z.B. RWA-Anlage, Raumluftanlage, Starkstrom, Schnelllauftore, Hochregallager, etc.
Sektionaltore ermöglichen den einfachen An- und Abtransport von Produkten. Darüber hinaus stehen Ihnen großzügige Büro- und Mitarbeiterräume sowie Aufenthaltsräume zur Verfügung, die eine angenehme Arbeitsatmosphäre schaffen.
Gerne beraten wir über die Möglichkeiten und entwickeln gemeinsam mit Ihnen die individuellen Möglichkeiten dieser Gewerbeimmobilie.
Lage
Die Gemeinde Issum liegt am Niederrhein, den manche auch als grünen Westen Deutschlands bezeichnen. Issum selbst ist rund 20 Kilometer von der niederländischen Grenze entfernt. Verkehrstechnisch hat Issum eine hervorragende Anbindung an das Autobahnnetz des Ruhrgebietes, der Niederlande und schnellen Zugang zu gleich zwei Flughäfen: in Weeze und in Düsseldorf.
A57 (10 Autominuten entfernt), B58, B510, B9, Airport Niederrhein (30 min.), Airport Düsseldorf (37 min.).
Linie SB 30 Issum – Sevelen – Kamp-Lintfort – Moers DU
Linie 31 Geldern Issum Sevelen Rheurdt – Aldekerk
6,4 km zum Bahnhof Nieukerk (RE10 Niers-Express, Kleve-Krefeld-Düsseldorf)
Ausstattung
– 35 PKW-Stellplätze
– zusätzliche Freiflächen
– RWA-Anlage
– Raumluftanlage
– Brandschutztüren
– Schnelllauftore
– Frosterzellen und Kühlräume
– Trafoanlage mit NSHV
– Ölzentralheizung mit Kunststofftanks
– Stahlrahmenkonstruktion
– Lichtkuppeln
Weiter Details
- Grundstücksfläche: 14.667 m²
- Anzahl Stellplätze: 36
- Heizungsart: Zentralheizung
- Zusatzinformation zur Lage: Sevelen
- Kaufpreis: 347.000 €
- Courtage: 0 % Provisionsfrei
- Anzahl Außenstellplätze: 35
- Anzahl Garagenstellplätze: 1
- Nutzfläche: 725 m²
- Gesamtfläche: 6.550 m²
- Lagerfläche: 643 m²
- Freifläche: 8.057 m²
- Bürofläche: 318 m²
- Sonstige Fläche: 232 m²
- Teilbar ab: 200 m²
- Befeuerung: Öl
- Stellplatzart: Garage, Freiplatz
- Baujahr: 1954
- Zustand: gepflegt
- Immobilie ist verfügbar ab: 31.12.2025
Wichtiger Hinweis
Die auf dieser Website dargestellten Immobilienangebote stammen teilweise von externen Maklerunternehmen innerhalb der Westdeutsche Immobilienbörse e.V. - Partnergemeinschaft und werden automatisiert über eine Schnittstelle eingebunden. Die Xcorp Immobilien GmbH ist in diesen Fällen nicht Anbieterin im Rechtssinne, sondern stellt lediglich die technische Plattform zur Verfügung. Für die Richtigkeit, Vollständigkeit und Aktualität der Angaben übernimmt die Xcorp Immobilien GmbH keine Verantwortung.

























