Zu Verkaufen €599.000 - Doppelhaushälfte
Objektbeschreibung
In attraktiver Wohnlage von Lohmar‑Birk entstehen moderne Doppelhaushälften in hochwertiger, massiver Bauweise. Das Projekt verfolgt das Ziel, zeitgemäßen und energieeffizienten Wohnraum für Familien und Paare zu schaffen. Klare Architektur, durchdachte Grundrisse und eine gehobene Ausstattung sorgen für ein überzeugendes Gesamtbild. Die Häuser werden schlüsselfertig errichtet und erfüllen sämtliche aktuellen Anforderungen des KfW-55-Standards. Jede Einheit bietet eine Wohnfläche von ca. 181 m² auf einem etwa 270 m² großen Grundstück. Die Fertigstellung ist für Dezember 2026 geplant.
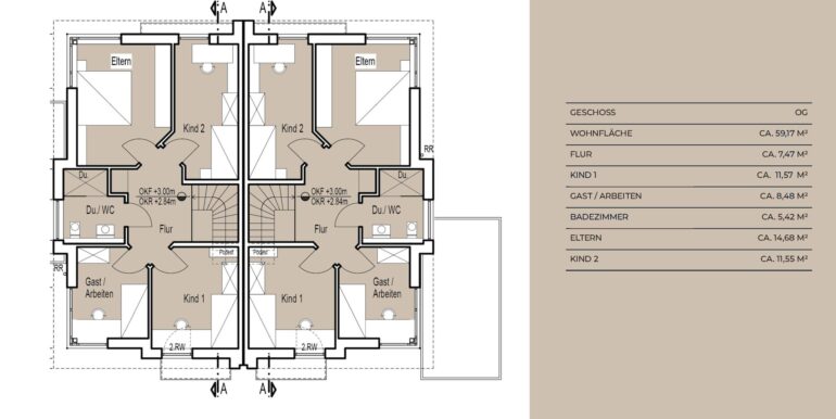
Die Doppelhaushälften verfügen über 6 großzügige Zimmer, darunter helle Wohn- und Schlafräume, 2 moderne Bäder sowie ein zusätzliches Gäste-WC. Die durchdachte Grundrissgestaltung ermöglicht komfortables Wohnen für Familien ebenso wie für anspruchsvolle Paare oder Homeoffice-Nutzer.
Das Gebäude wird in massiver Bauweise errichtet und entspricht sämtlichen aktuellen technischen und energetischen Standards. Die Beheizung erfolgt über eine moderne, elektrisch betriebene Luft-/Wasser-Wärmepumpe in Kombination mit einer Fußbodenheizung in allen Wohnräumen, was für hohe Energieeffizienz und nachhaltiges Wohnen sorgt. Ergänzend ist eine Photovoltaikanlage (7,2 kWp) vorgesehen.
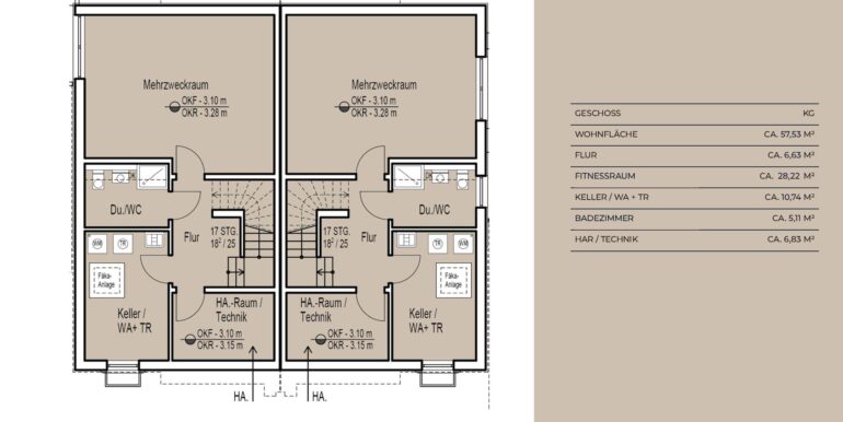
Ein besonderes Highlight ist die Vollunterkellerung, die zusätzliche Nutz- und Abstellflächen bietet, sowie die integrierte Garage, die den Wohnkomfort abrundet.
Die Ausstattung überzeugt durch hochwertige Materialien und Markenprodukte, unter anderem:
– 3-fach verglaste Kunststofffenster mit elektrischen Rollläden bzw. Raffstores
– Aluminium-Haustür mit Mehrfachverriegelung
– Bodengleiche Duschen, Sanitärobjekte von Villeroy & Boch und Armaturen von Hansgrohe
– Netzwerkverkabelung (CAT 7) in den Wohnräumen
– Dachbegrünung als nachhaltiges Gestaltungselement
Die Innenausstattung bietet darüber hinaus Raum für individuelle Gestaltung, da Malerarbeiten sowie Bodenbeläge außerhalb der Bäder in Eigenleistung erfolgen können. Dies gilt ebenso für die Außenanlagen.
Eine detaillierte Bau- und Ausstattungsbeschreibung liegt vor und unterstreicht den hohen Qualitätsstandard dieses Neubauprojekts. Dieses Doppelhaus vereint zeitgemäße Architektur, nachhaltige Technik und exklusives Wohnen in einer begehrten Lage von Lohmar-Birk. Es eignet sich ideal für Eigennutzer und Investoren.
Bitte beachten Sie: Die im Exposé angegebene Wohnfläche von 156 m² umfasst auch den Fitnessraum, die Dusche und den Flur im Kellergeschoss. Diese Bereiche sind offiziell als Nutzflächen einzuordnen.
Lage
Das Doppelhaus befindet sich in Lohmar-Birk im Rhein-Sieg-Kreis und bietet eine naturnahe Umgebung. Die Lage zeichnet sich durch eine gute lokale Infrastruktur mit Einkaufsmöglichkeiten für den täglichen Bedarf, Ärzten und Schulen aus.
Eine hervorragende Anbindung an den öffentlichen Nahverkehr mit Buslinien zu umliegenden Städten und Bahnhöfen ist gegeben. Die Nähe zu größeren Städten wie Köln und Bonn gewährleistet zudem einen einfachen Zugang zu Arbeitsplätzen und kulturellen Angeboten.
Ausstattung
– Erstbezug
– energieeffiziente Wärmepumpe
– Fußbodenheizung mit Raumthermostatregelung
– Handtuchheizkörper in den Bädern
– Sanitärgegenstände von Villeroy & Boch
– elektrische Rollläden
– Fenster mit 3-fach Wärmeschutzverglasung
– Haustüre mit 3-fach Verglasung mit Verbundsicherheitsglas und 3-fach Verrieglung
– großflächige Terrasse
Weiter Details
- Grundstücksfläche: 270 m²
- Zimmer insgesamt: 6
- Anzahl Stellplätze: 1
- Anzahl Etagen: 2,0
- Kaufpreis: 599.000 €
- Courtage: 3,57
- Anzahl Garagenstellplätze: 1
- Stellplatzkaufpreis (Garage): 19.900 €
- Nutzfläche: 57,53 m²
- Separate WCs: 1
- Terrassen: 1
- Art der Ausstattung: luxuriös
- Befeuerung: Elektro
- Baujahr: 2026
- Zustand: Erstbezug
- Immobilie ist verfügbar ab: Dezember 2026
Wichtiger Hinweis
Die auf dieser Website dargestellten Immobilienangebote stammen teilweise von externen Maklerunternehmen innerhalb der Westdeutsche Immobilienbörse e.V. - Partnergemeinschaft und werden automatisiert über eine Schnittstelle eingebunden. Die Xcorp Immobilien GmbH ist in diesen Fällen nicht Anbieterin im Rechtssinne, sondern stellt lediglich die technische Plattform zur Verfügung. Für die Richtigkeit, Vollständigkeit und Aktualität der Angaben übernimmt die Xcorp Immobilien GmbH keine Verantwortung.








