Zu Vermieten €1.700 - Zweifamilienhaus
Objektbeschreibung
Zu vermieten ist ein großzügiges 2-Familienhaus aus dem Jahr 1955, das 2011 umfassend modernisiert wurde und heute zeitgemäßen Wohnkomfort auf rund 245 m² Wohnfläche bietet. Das Haus erstreckt sich über drei Ebenen und verfügt über insgesamt acht Zimmer, die flexible Nutzungsmöglichkeiten für Familien, Mehrgenerationenwohnen oder die Kombination von Wohnen und Arbeiten eröffnen.
Das Erdgeschoss empfängt Sie mit einem hellen, einladenden Wohnzimmer, einem großzügigen Schlafzimmer, einer funktional geschnittenen Küche und einem Tageslichtbad mit Dusche. Im ersten Obergeschoss setzt sich das familienfreundliche Raumkonzept fort: Ein harmonisch geschnittenes Wohnzimmer, zwei flexibel nutzbare Schlafzimmer, eine voll ausgestattete Küche mit direktem Zugang zur Dachterrasse sowie ein Tageslichtbad mit Dusche schaffen ein komfortables Wohnumfeld.
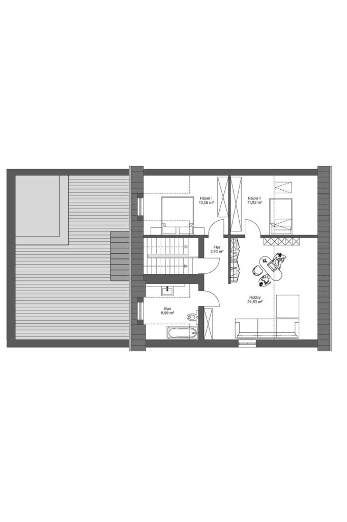
Das Dachgeschoss ist ideal für Kinder, Gäste oder kreative Nutzungsideen: Zwei helle Zimmer, ein offener Hobby- und Wohnbereich sowie ein großzügiges Tageslichtbad mit Badewanne bieten Rückzugs- und Entfaltungsmöglichkeiten.
Das Haus liegt auf einem 394 m² großen Grundstück, das gemeinschaftlich mit einem renommierten portugiesischen Restaurant genutzt wird, und besticht durch sein charmantes Umfeld.
Dieses Objekt vereint großzügige Raumaufteilung, flexible Nutzungsmöglichkeiten und gepflegten Wohnkomfort und bietet damit ein seltenes Mietangebot für anspruchsvolle Familien oder Interessenten, die ein vielseitiges, großzügiges Zuhause suchen.
Lage
Die Immobilie überzeugt durch ihre zentrale Lage in Erkelenz mit unmittelbarer Nähe zum Bahnhof, wodurch eine ausgezeichnete Anbindung an den öffentlichen Nahverkehr und eine schnelle Erreichbarkeit der umliegenden Städte gewährleistet ist. Das Stadtzentrum ist bequem erreichbar, und sämtliche Einrichtungen des täglichen Bedarfs – darunter Supermärkte, Apotheken, Schulen und Kindergärten – befinden sich in fußläufiger Entfernung.
Die Umgebung besticht durch eine ausgewogene Verbindung von urbaner Infrastruktur und ruhigen Rückzugsbereichen. Pendler profitieren von idealen Zugverbindungen nach Mönchengladbach, Düsseldorf oder Köln, während das vielfältige gastronomische Angebot und die Nähe zu kulturellen Einrichtungen und Freizeitmöglichkeiten die Attraktivität des Standortes zusätzlich erhöhen.
Diese Lage vereint sämtliche Vorteile eines zentralen Wohnumfeldes mit hoher Lebensqualität und macht die Immobilie sowohl für Familien als auch für Berufspendler besonders interessant.
Ausstattung
Objektdaten
Baujahr: 1955
Modernisierung: 2011
Grundstücksgröße: 394 m² (gemeinschaftliche Nutzung mit einem renommierten portugiesischen Restaurant)
Wohnfläche: ca. 245 m²
Zimmer: 8 Zimmer auf 3 Ebenen
Nutzungsprofil: Ideal für Familien, Mehrgenerationenwohnen oder die Kombination aus Wohnen & Arbeiten
Wohnbereiche im Detail
Erdgeschoss – Komfortables Wohnen auf einer Ebene
Lichtdurchflutetes Wohnzimmer mit angenehmer Raumwirkung
Großzügiges Schlafzimmer mit optimalem Rückzugscharakter
Separate, funktional geschnittene Küche
Badezimmer mit Dusche
1. Obergeschoss – Familienfreundliche Wohnatmosphäre
Großzügiges Wohnzimmer mit harmonischem Grundriss
Zwei Schlafzimmer, variabel nutzbar
Voll ausgestattete Küche mit direktem Zugang zur Dachterrasse – perfekt für entspannte Momente im Freien
Tageslichtbad mit Dusche
Dachgeschoss – Attraktiver Rückzugsort für Kinder & Kreative
Zwei helle Zimmer, ideal als Kinder-, Gäste- oder Hobbyräume
Offener Hobby-/Wohnbereich mit gemütlicher Atmosphäre
Großzügiges Tageslichtbad mit Badewanne – ideal für entspannte Auszeiten
Besondere Vorzüge des Hauses
Modernisierung 2011 sorgt für zeitgemäßen Wohnkomfort
Attraktive Lage mit charmantem, kulinarischem Umfeld
Perfekte Raumstruktur für Familien, die Wert auf Platz, Vielseitigkeit und Komfort legen
Weiter Details
- Grundstücksfläche: 394 m²
- Zimmer insgesamt: 8
- Kaltmiete: 1.700 €
- monatl. Betriebs-/Nebenkosten: 200 €
- Netto-Kaltmiete pro m²: 6,94 €
- Kaution: 3.400 €
- Terrassen: 1
- Befeuerung: Gas
- Baujahr: 1955
- Zustand: gepflegt
Wichtiger Hinweis
Die auf dieser Website dargestellten Immobilienangebote stammen teilweise von externen Maklerunternehmen innerhalb der Westdeutsche Immobilienbörse e.V. - Partnergemeinschaft und werden automatisiert über eine Schnittstelle eingebunden. Die Xcorp Immobilien GmbH ist in diesen Fällen nicht Anbieterin im Rechtssinne, sondern stellt lediglich die technische Plattform zur Verfügung. Für die Richtigkeit, Vollständigkeit und Aktualität der Angaben übernimmt die Xcorp Immobilien GmbH keine Verantwortung.












