Entdecken Sie Ihr Traum-Zuhause in Kaarst mit Wintergarten! - Xcorp Immobilien GmbH Immobilienmakler Zwangsverwalter Nachlassverwalter

Entdecken Sie Ihr Traum-Zuhause in Kaarst mit Wintergarten!

Entdecken Sie Ihr Traum-Zuhause in Kaarst mit Wintergarten!
41564 Kaarst, Deutschland
Zu Verkaufen €279.000 - Erdgeschosswohnung
20049-3476 67 m² 1 Zimmer 1 Badezimmer 1991 Baujahr

Objektbeschreibung

Ein Ort, an dem der Tag entspannt beginnt. Wo Du morgens barfuß durch den Wintergarten gehst, während das erste Licht durch die großen Fenster fällt. Wo der Kaffee auf der Terrasse gleich ein bisschen besser schmeckt – mit Blick ins Grüne und dem Gefühl: Hier bin ich richtig.

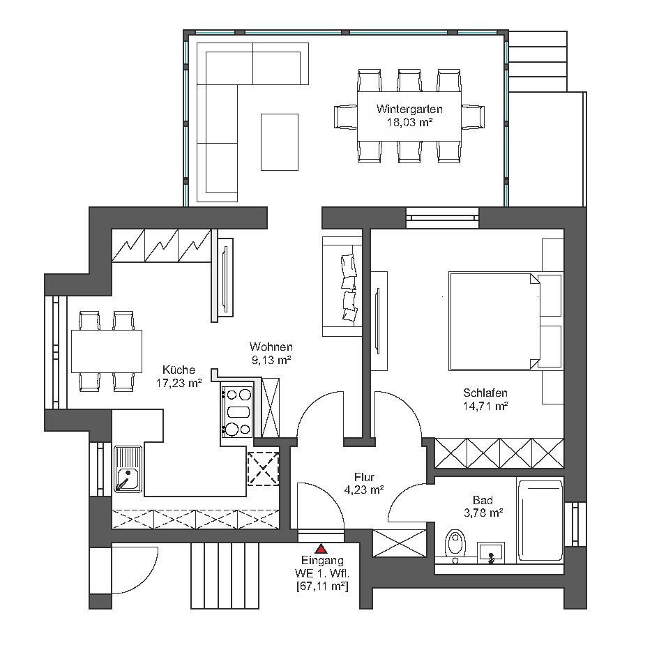
Diese Erdgeschosswohnung in einem liebevoll gepflegten 6-Parteienhaus (Baujahr 1991) bietet Dir auf ca. 67 m² genau das richtige Maß an Raum – nicht zu viel, nicht zu wenig. Zwei helle Zimmer, die Dir Platz zum Ankommen, Arbeiten, Leben geben. Alles wirkt offen, ruhig, harmonisch.

Das Herzstück? Ganz klar: der großzügige Wintergarten mit rund 18 m². Ein Raum zwischen drinnen und draußen – für Pflanzen, Bücher, Gespräche, Abende bei Kerzenschein. Und direkt daneben: Deine Terrasse mit Gartenanteil. Eine kleine grüne Oase mit gemütlicher Loungeecke, in der die Zeit gern mal stillsteht.

Und wenn Du nach Hause kommst, wartet Dein Carport-Stellplatz schon auf Dich – trocken, sicher, direkt am Haus.

Kurz gesagt: Diese Wohnung will nicht einfach nur gefallen. Sie will Dir gefallen.
Und vielleicht tut sie das ja gerade.

Lage

Diese charmante Erdgeschosswohnung befindet sich in Kaarst, Deutschland. Kaarst ist eine lebendige Stadt, die sich durch ihre hervorragende Infrastruktur und die Nähe zu wichtigen städtischen Annehmlichkeiten auszeichnet.

Die Lage der Wohnung ist besonders vorteilhaft: Das Stadtzentrum von Kaarst ist lediglich 5,34 km entfernt und bietet eine breite Palette an Einkaufsmöglichkeiten, Restaurants und Freizeiteinrichtungen. Für Pendler erweist sich die Nähe zur Autobahn als äußerst nützlich, da diese nur 1,11 km entfernt ist und somit eine schnelle Verbindung zu umliegenden Städten und Regionen gewährleistet.

Familien mit Kindern profitieren von der unmittelbaren Nähe zu Bildungseinrichtungen: Der nächstgelegene Kindergarten ist nur 0,39 km entfernt, während die Grundschule in einer Entfernung von 0,6 km schnell erreicht werden kann. Weiterführende Schulen wie die Realschule und das Gymnasium sind ebenfalls gut erreichbar, mit Entfernungen von 1,94 km und 1,16 km.

Zusammengefasst bietet diese Erdgeschosswohnung eine ideale Kombination aus zentraler Lage, guter Verkehrsanbindung und unmittelbarer Nähe zu Bildungseinrichtungen, was sie zu einem perfekten Wohnort für Familien und Berufspendler macht.

Ausstattung

– Erdgeschosswohnung in einem gepflegten 6-Parteienhaus (Baujahr 1991)
– Wohnfläche ca. 67 m² – ideal geschnitten für Singles oder Paare
– 2 helle Zimmer mit angenehmem Raumgefühl
– Großzügiger Wintergarten (ca. 18 m²), direkt vom Wohnbereich zugänglich – lichtdurchflutet und
vielseitig nutzbar
– Sonnige Terrasse mit Zugang zum liebevoll angelegten Garten inklusive gemütlicher Loungeecke
– Eigener Carport – sicher und wettergeschützt parken
– Voll unterkellert – mit praktischem Stauraum
– Fußbodenheizung für durchgängige Wohlfühlwärme
– Moderne Gasheizung aus dem Jahr 2024 – effizient und zukunftsorientiert
– Monatliches Hausgeld: 222,00 € (inklusive Instandhaltungsrücklagen)

Weiter Details

  • Zimmer insgesamt: 2
  • Anzahl Stellplätze: 2
  • Heizungsart: Fußbodenheizung
  • Anzahl Etagen: 2,0
  • Hausgeld: 222 €
  • Kaufpreis: 279.000 €
  • Courtage: 3,57% inkl. MwSt.
  • Anzahl Carport-Stellplätze: 1
  • Anzahl Außenstellplätze: 1
  • Terrassen: 1
  • Art der Ausstattung: Standard
  • Befeuerung: Gas
  • Baujahr: 1991
  • Zustand: gepflegt

Wichtiger Hinweis

Die auf dieser Website dargestellten Immobilienangebote stammen teilweise von externen Maklerunternehmen innerhalb der Westdeutsche Immobilienbörse e.V. - Partnergemeinschaft und werden automatisiert über eine Schnittstelle eingebunden. Die Xcorp Immobilien GmbH ist in diesen Fällen nicht Anbieterin im Rechtssinne, sondern stellt lediglich die technische Plattform zur Verfügung. Für die Richtigkeit, Vollständigkeit und Aktualität der Angaben übernimmt die Xcorp Immobilien GmbH keine Verantwortung.

Grundrisse

Grundriss

Ungefähre Lage

Ähnliche Immobilien

Accessibility Toolbar