Zu Vermieten €937 - Bürohaus
Objektbeschreibung
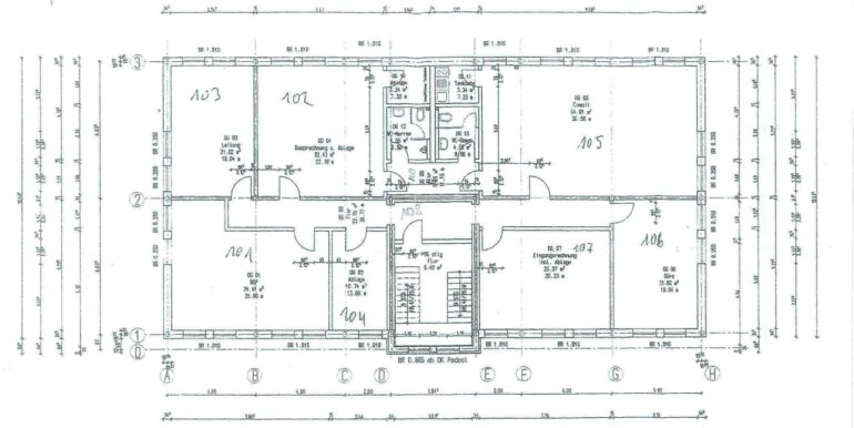
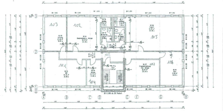
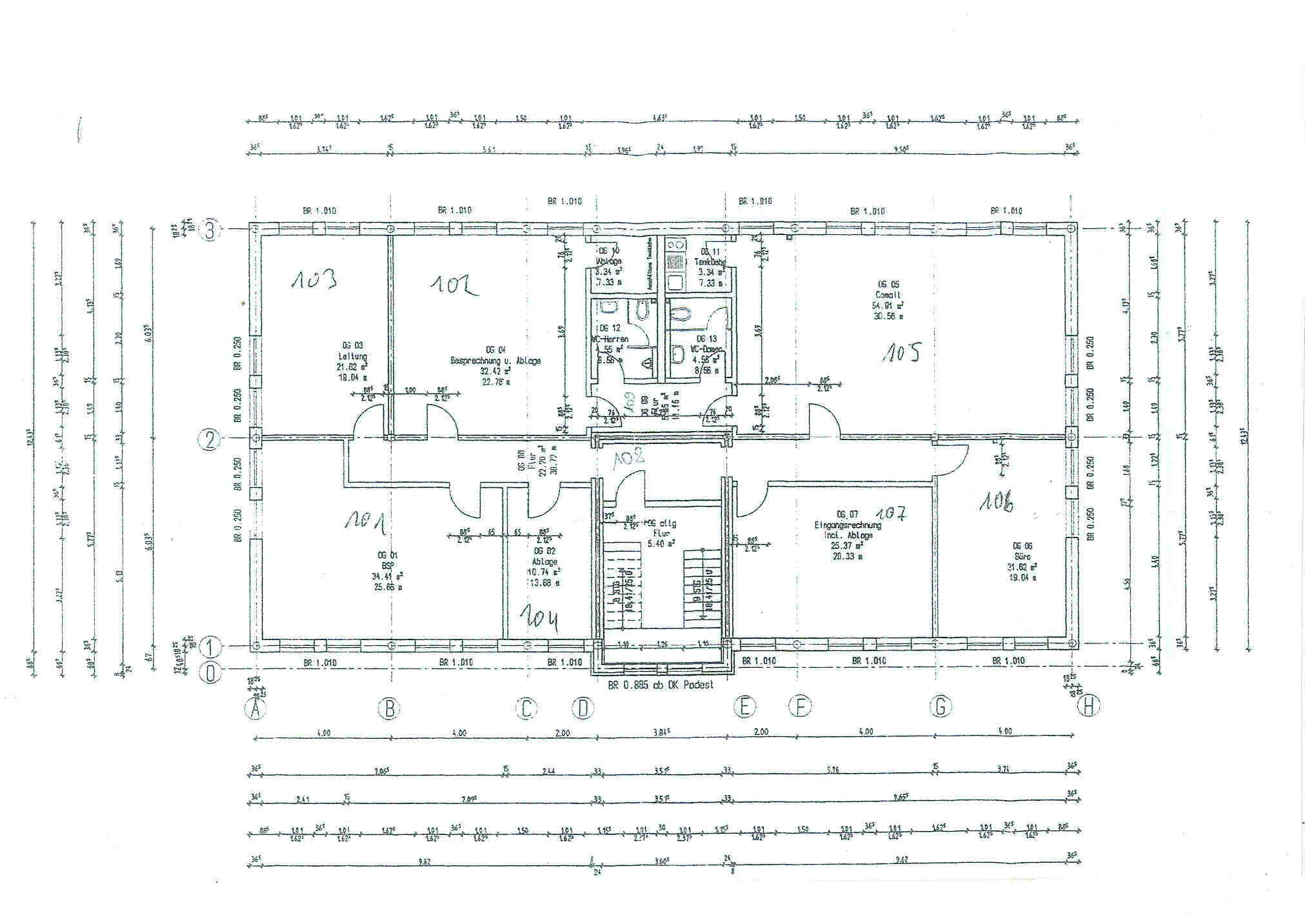
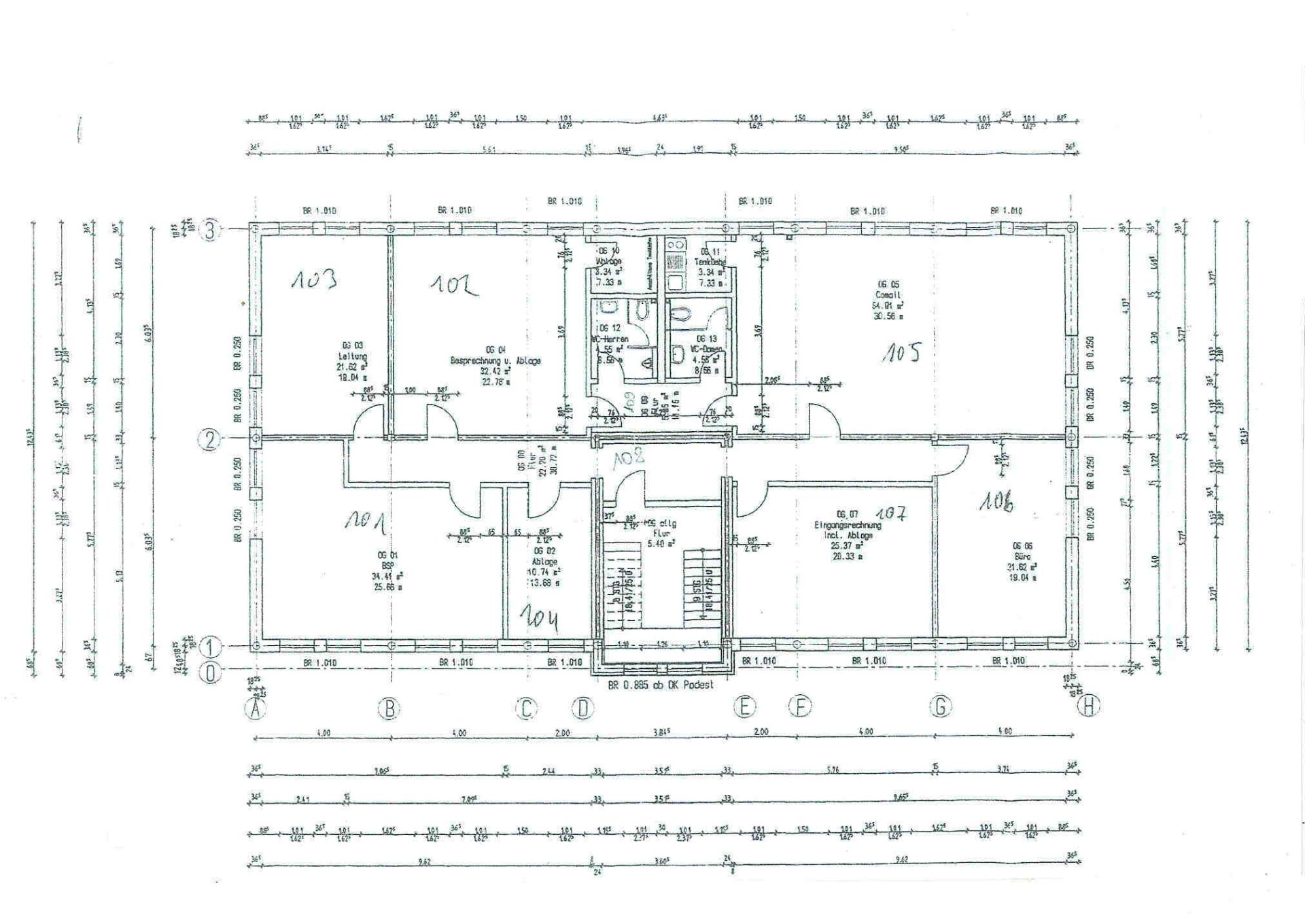
Willkommen in Ihrer neuen Gewerbeimmobilie – einem modernen Bürogebäude, das alle Voraussetzungen für eine erfolgreiche Unternehmensführung bietet! Diese großzügige Immobilie erstreckt sich über 125 m² im Obergeschoss und umfasst insgesamt vier helle Büros, die mit großen Fenstern ausgestattet sind und somit eine lichtdurchflutete Arbeitsatmosphäre schaffen. Die flexible Raumgestaltung ermöglicht es Ihnen, die Büros nach Ihren individuellen Bedürfnissen anzupassen und optimal für verschiedene Projektbereiche zu nutzen.
Für Ihre Mitarbeiter steht eine Teeküchen bereit, die ideal ist um in den Pausen neue Energie zu tanken. Die sanitären Einrichtungen sind durch eine separate Herren- und Damentoiletten bestens ausgestattet. Ein weiterer Pluspunkt ist die zentrale Internetverbindung, die demnächst auf Glasfaser umgerüstet wird – perfekt für Unternehmen, die auf eine schnelle und zuverlässige Internetverbindung angewiesen sind. Das Gebäude ist komplett alarmgesichert und mit einem Wachdienst rund um die Uhr verbunden.
Ihnen stehen sechs Stellplätze á 20 € und drei Ladesäulen für Elektrofahrzeuge zur Verfügung.
Zusätzlich besteht die Möglichkeit, das vorhandene Inventar zu übernehmen, was Ihnen den Einstieg in Ihre neuen Büroräume erheblich erleichtert. Diese Gewerbeimmobilie bietet nicht nur eine hervorragende Lage und moderne Ausstattung, sondern auch die Flexibilität, die Sie für Ihr Unternehmen benötigen. Lassen Sie sich diese Chance nicht entgehen und gestalten Sie Ihre Geschäftsideen in einem inspirierenden Umfeld!
Haben wir Ihr Interesse geweckt, dann vereinbaren Sie noch heute einen Besichtigungstermin mit uns.
Lage
Dortmund-Wickede ist ein Stadtteil im Osten Dortmunds, der durch eine gute Infrastruktur geprägt ist. Die Verkehrsanbindung ist durch die nahegelegene B1, A40 und A1 ideal. Das Stadtzentrum und die umliegenden Regionen sind schnell zu erreichen. Das Objekt liegt im Gewerbegebiet im östlichen Wickede nördlich des Flughafens.
Die Anbindung an den öffentlichen Nahverkehr ist sehr gut. In der Nähe befinden sich die Haltestelle Wickede und Dollersweg, die von der S4 bedient werden. Die U-Bahn Linie U43 ist ebenfalls erreichbar. Verschiedene Buslinien der DSW 21 verkehren ebenfalls in Do-Wickede. Die Parkplatzsituation am Objekt ist entspannt, es gibt sowohl öffentliche Parkplätze als auch Parkmöglichkeiten auf dem Gelände.
Weiter Details
- Zimmer insgesamt: 4
- Anzahl Stellplätze: 3
- Heizungsart: Zentralheizung
- Anzahl Etagen: 2,0
- Etage: 1
- Zusatzinformation zur Lage: Wickede
- Kaltmiete: 937,50 €
- monatl. Betriebs-/Nebenkosten: 312,90 €
- Preise zuzüglich Mehrwertsteuer: ja
- Courtage: 1.19 MM
- Kaution: 1,88 €
- Anzahl Außenstellplätze: 3
- Außenstellplatzmiete: 20 €
- Nutzfläche: 125 m²
- Gesamtfläche: 125 m²
- Bürofläche: 125 m²
- Art der Ausstattung: Standard
- Befeuerung: Gas
- Bodenbelag: Teppich
- Stellplatzart: Freiplatz
- Baujahr: 1998
- Zustand: gepflegt
- Immobilie ist verfügbar ab: sofort
Wichtiger Hinweis
Die auf dieser Website dargestellten Immobilienangebote stammen teilweise von externen Maklerunternehmen innerhalb der Westdeutsche Immobilienbörse e.V. - Partnergemeinschaft und werden automatisiert über eine Schnittstelle eingebunden. Die Xcorp Immobilien GmbH ist in diesen Fällen nicht Anbieterin im Rechtssinne, sondern stellt lediglich die technische Plattform zur Verfügung. Für die Richtigkeit, Vollständigkeit und Aktualität der Angaben übernimmt die Xcorp Immobilien GmbH keine Verantwortung.












