Zu Verkaufen €1.400.000 - Wohn- und Geschäftshaus
Objektbeschreibung
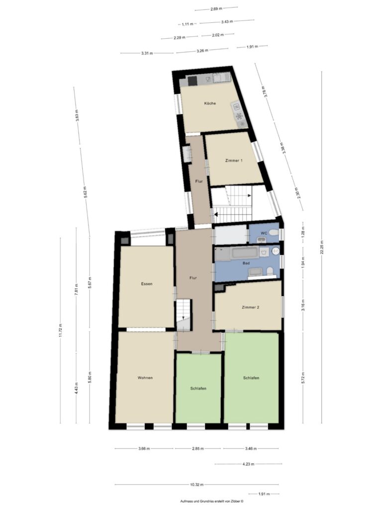
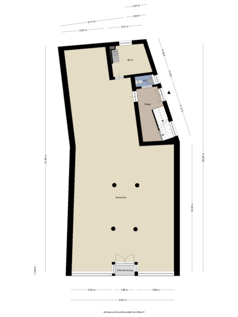
Dieses gepflegte Wohn- und Geschäftshaus bietet eine hervorragende Investitionsmöglichkeit in einer attraktiven Lage und erwirtschaftet 75.840 € p.a. Das Gebäude wurde im Jahr 1920 errichtet und verbindet historischen Charme mit funktionaler Architektur. Die Immobilie umfasst ein Gewerbefläche im Erdgeschoss, eine Gewerbefläche im 1. OG und eine Wohneinheit im 2. OG. Die gut geschnittenen Wohnbereiche bieten großzügige Platzverhältnisse und die Möglichkeit zur individuellen Gestaltung. Das Objekt befindet sich in einer gut angebundenen Lage mit einer Vielzahl von Einkaufsmöglichkeiten, Restaurants und öffentlichen Verkehrsmitteln in unmittelbarer Nähe.
Profitieren Sie von der stabilen Vermietungssituation und dem Potenzial zur Wertsteigerung in einem dynamischen Umfeld.
Lage
Die Immobilie in Unna besticht durch eine hervorragende Infrastruktur und bietet eine hohe Lebensqualität. Verschiedene Einkaufsmöglichkeiten für den täglichen Bedarf sowie eine breite Auswahl an Geschäften und Cafés in der lebendigen Innenstadt sind schnell und bequem erreichbar. Die Anbindung an den öffentlichen Nahverkehr ist ausgezeichnet, mit regelmäßigen Verbindungen vom nahegelegenen Bahnhof Unna, die eine unkomplizierte Erreichbarkeit des Umlands und der Metropole Dortmund gewährleisten.
Bildungsangebote sind zahlreich und vielfältig, mit mehreren Schulen und Kindertagesstätten in der Umgebung, die eine umfassende Betreuung und Bildung sicherstellen. Die medizinische Versorgung ist ebenfalls bestens abgedeckt, da Apotheken und Arztpraxen in der Nähe zu finden sind.
Für Freizeitaktivitäten bieten die großzügigen Grünflächen in der Umgebung ideale Möglichkeiten zur Erholung und Entspannung. Sportbegeisterte profitieren von einem gut ausgebauten Netz an Radwegen, das zu ausgedehnten Fahrradtouren einlädt. Zahlreiche Sportvereine und Freizeitangebote in der Umgebung ermöglichen zudem eine aktive Freizeitgestaltung. Diese vielfältigen Aspekte tragen maßgeblich zur Attraktivität der Lage bei.
Sonstiges
Die Nettokaltmiete beträgt ohne Berücksichtigung der gesetzlichen Mehrwertsteuer 75.840 €.
Der Mietvertrag mit dem Unternehmen Nanu-Nana läuft fest bis einschließlich 2031.
Energieausweis – Wohneinheiten
Befeuerung: Befeuerung Oel
Heizungsart: Öl-Heizung
Energieausweis: Bedarfsausweis
Wärmewert: 271,6 kWh
Klasse: H
Gültig von: 02.04.2026
Gültig bis: 01.04.2036
Baujahr: 1903
Weiter Details
- Zimmer insgesamt: 12
- Anzahl Stellplätze: 2
- Heizungsart: Zentralheizung
- Anzahl Etagen: 3,0
- Zusatzinformation zur Lage: Innenstadt
- Kaufpreis: 1.400.000 €
- Courtage: 3.75 %
- Aktuelle Mieteinnahmen: 75.840 €
- Anzahl Außenstellplätze: 1
- Anzahl Garagenstellplätze: 1
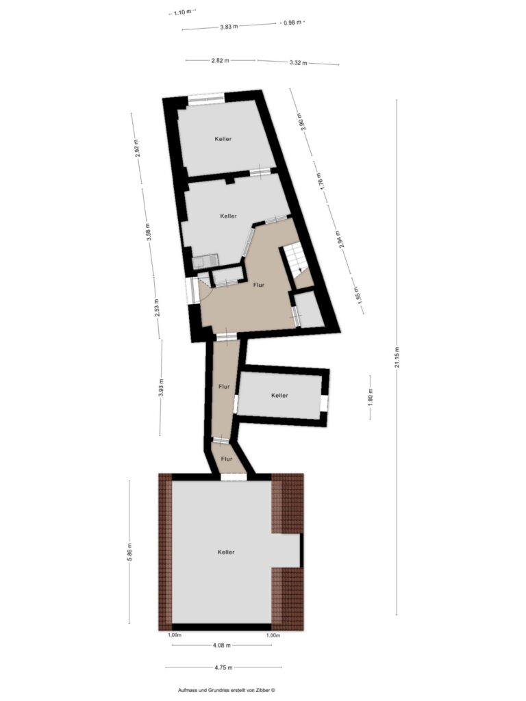
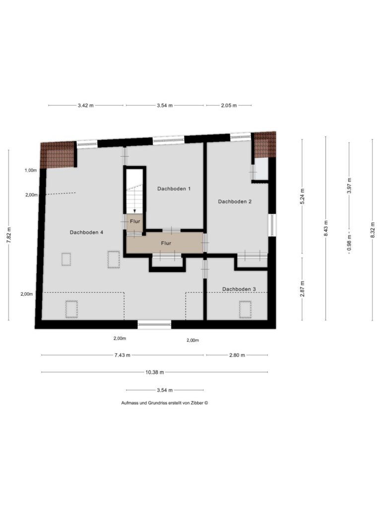
- Sonstige Fläche: 183,9 m²
- Vermietbare Fläche: 443,2 m²
- Befeuerung: Öl
- Baujahr: 1920
- Zustand: gepflegt
- Immobilie ist verfügbar ab: sofort
Wichtiger Hinweis
Die auf dieser Website dargestellten Immobilienangebote stammen teilweise von externen Maklerunternehmen innerhalb der Westdeutsche Immobilienbörse e.V. - Partnergemeinschaft und werden automatisiert über eine Schnittstelle eingebunden. Die Xcorp Immobilien GmbH ist in diesen Fällen nicht Anbieterin im Rechtssinne, sondern stellt lediglich die technische Plattform zur Verfügung. Für die Richtigkeit, Vollständigkeit und Aktualität der Angaben übernimmt die Xcorp Immobilien GmbH keine Verantwortung.










