Zu Verkaufen €209.000 - Terrassenwohnung
Objektbeschreibung
Diese sehr gepflegte ca. 82 m² große 3-Zimmer-Eigentumswohnung befindet sich im Erdgeschoss eines ebenso gepflegten Mehrfamilienhauses in einer ruhigen Seitenstraße im beliebten Klosterviertel in Hagen.
Nachdem Sie über den Hauszugang stufenlos zur Wohnung gelangt sind, betreten Sie die zentrale Wohnungsdiele, über die alle Zimmer erreichbar sind.
Herzstück der Wohnung ist das ca. 27 m² große Wohn-/ und Esszimmer mit direktem Zugang zur großzügigen, teilüberdachten Terrasse mit Süd-Ost- Ausrichtung.
Direkt neben dem Wohn-/ Esszimmer liegt die Küche. Zudem stehen zwei gut geschnittene Schlafzimmer, ein modern gefliestes Tageslichtbad mit Badewanne und Dusche sowie ein innenliegendes Gäste-WC zur Verfügung.
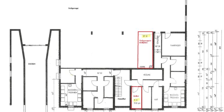
Ein weiterer Mehrwert dieser Immobilie ist der zur Wohnung gehörende Tiefgaragenstellplatz, der bereits mit einer Wallbox ausgestattet ist und damit den heutigen Anforderungen an moderne Mobilität gerecht wird.
Die Wohnung eignet sich auch als Kapitalanlage mit langfristiger Perspektive. Derzeit ist die Wohnung bereits seit neun Jahren durchgehend vermietet. Die Mieterin fühlt sich in der Wohnung sehr wohl und möchte das Mietverhältnis gerne fortsetzen. Die derzeitige Kaltmiete beträgt 630 EUR monatlich, hinzu kommen 45 EUR für den Tiefgaragenstellplatz.
Diese Immobilie bietet Ihnen eine hervorragende Kombination aus laufenden Erträgen, langfristiger Vermietbarkeit sowie nachhaltiger Wertstabilität und Entwicklungspotenzial.
Lage
Das Klosterviertel in Hagen zählt zu den begehrtesten Wohnlagen der Stadt und das aus gutem Grund: Hier verbindet sich eine hervorragende Lage mit einer hohen Wohnqualität, einer sehr guten Infrastruktur und einer guten Nahversorgung.
Die Lage zeichnet sich durch eine ruhige Seitenstraße aus, die trotzdem eine exzellente Verkehrsanbindung bietet. Sowohl die A46 als auch die A45 sind schnell zu erreichen.
In fußläufiger Nähe zur Wohnung befinden sich die wichtigsten Versorgungsmöglichkeiten des täglichen Bedarfs: Ein Supermarkt mit Bäckerei sowie auch eine Apotheke.
Für Familien mit Kindern bietet das Klosterviertel ebenfalls optimale Voraussetzungen: Mehrere Kindergärten sind ohne großen Aufwand zu erreichen, ebenso wie eine Grundschule. Weiterführende Schulen sind ebenfalls gut erreichbar sowohl mit dem Fahrrad als auch mit öffentlichen Verkehrsmitteln.
Diese Kombination aus innerstädtischer Nähe, ruhiger Wohnlage, hervorragender Verkehrsanbindung, guter Nahversorgung und familiärer Infrastruktur macht das Klosterviertel zu einer begehrten Adresse für Eigennutzer und Kapitalanleger gleichermaßen.
Ausstattung
Bauweise: Massive Bauweise
Außenwände: Kalksandsteinmauerwerk mit zusätzlicher Wärmedämmung
Innenwände: Kalksandstein bzw. Mauerwerk
Decken: Stahlbetondecken
Dach: Satteldach in Holzkonstruktion mit Betondachsteinen, wärmegedämmt
Fassade: Heller Strukturputz, Sockelbereich farblich abgesetzt
Fenster: Kunststofffenster mit Isolierverglasung, teilweise bodentiefe Elemente
Rollläden: Kunststoffrollläden an Wohn-/ und Schlafräumen
Hauseingangstür: Aluminium-Türanlage mit Gegensprechanlage
Wohnungseingangstüren: Mehrfach verriegelte Türen mit Schallschutz
Innentüren: Holztüren, weiß lackiert
Bodenbeläge: Fliesen in Diele, Küche und Bad, Parkett (Buche) in Wohn-/ und Schlafräumen
Wand-/ und Deckenflächen: Tapeziert und hell gestrichen ,Bäder gefliest
Badezimmer: Tageslichtbad mit Badewanne und Dusche
Gäste-WC: Vorhanden, innenliegend
Heizung: Gas-Zentralheizung mit moderner Brennwerttechnik
Warmwasser: Dezentrale über Durchlauferhitzer bzw. Untertischgeräte
Elektro: Zeitgemäße Elektroinstallation mit Kippsicherungen und FI- Schutzschalter
Wasseruhr: Vorhanden
Keller: Separater Kellerraum je Wohnung
Gemeinschaftsräume: Wasch- /Trockenraum sowie Fahrradkeller
Terrasse/ Balkon: Überdachte Terrasse mit kleiner Gartenfläche, nach Süd- Osten ausgerichtet
PKW- Stellplatz: Tiefgaragenstellplatz mit elektrischem Tor und Wallboxanschluss
Hausgeld: 239 EUR/ Monat darin enthalten sind die Kosten für Wasser, Abwasser und Entwässerung, Heizkosten nach Verbrauch (inkl. Wartung und Betrieb der Heizungsanlage), Müllabfuhr, städtische Straßen- und Winterdienst, Allgemeinstrom (Haus und Garage), Versicherungen des Gemeinschaftseigentums, Wartung der technischer Anlagen (Rauch- und Wärmeabzugsanlage, Garagentor), objektbezogener Winterdienst und Außenanlagen- sowie Gartenpflege der gemeinschaftlichen Flächen
Grundbesitzabgaben: 600 EUR/ Jahr für Grundsteuer B
Rücklagen: 4.768 EUR anteilig
Mieteinnahmen: 630 EUR/ Monat Kaltmiete zzgl. 45 EUR/ Monat Tiefgaragenstellplatz
Sonstiges
Der Energieausweis wird den Interessenten nach der Besichtigung in Kopie übergeben:
Energieausweis: Verbrauchsausweis
gültig von: 17.01.2018
Endenergieverbrauch Wärme: 68.9 kWh/(m²a)
Energieeffizienzklasse: B
Energieträger: Gas
Baujahr: 2002
Weiter Details
- Zimmer insgesamt: 3
- Heizungsart: Zentralheizung
- Anzahl Etagen: 3,0
- Etage: 2
- Zusatzinformation zur Lage: Hochschulviertel
- Hausgeld: 239 €
- Kaufpreis: 209.000 €
- Courtage: 3.57 %
- Aktuelle Mieteinnahmen: 8.100 €
- Anzahl TG-Stellplätze: 1
- Terrassen: 1
- Wohneinheiten: 8
- Art der Ausstattung: Standard
- Befeuerung: Gas
- Bodenbelag: Fliesen, Parkett
- Badausstattung: Dusche, Badewanne, Fenster im Badezimmer
- Stellplatzart: Tiefgarage
- Baujahr: 2002
- Zustand: gepflegt
- Immobilie ist verfügbar ab: sofort
Wichtiger Hinweis
Die auf dieser Website dargestellten Immobilienangebote stammen teilweise von externen Maklerunternehmen innerhalb der Westdeutsche Immobilienbörse e.V. - Partnergemeinschaft und werden automatisiert über eine Schnittstelle eingebunden. Die Xcorp Immobilien GmbH ist in diesen Fällen nicht Anbieterin im Rechtssinne, sondern stellt lediglich die technische Plattform zur Verfügung. Für die Richtigkeit, Vollständigkeit und Aktualität der Angaben übernimmt die Xcorp Immobilien GmbH keine Verantwortung.











