Zu Verkaufen €849.000 - Mehrfamilienhaus
Objektbeschreibung
Das hier angebotene Mehrfamilienhaus mit Altbaucharme umfasst insgesamt drei Wohneinheiten, verteilt auf Erdgeschoss, Obergeschoss und Dachgeschoss.
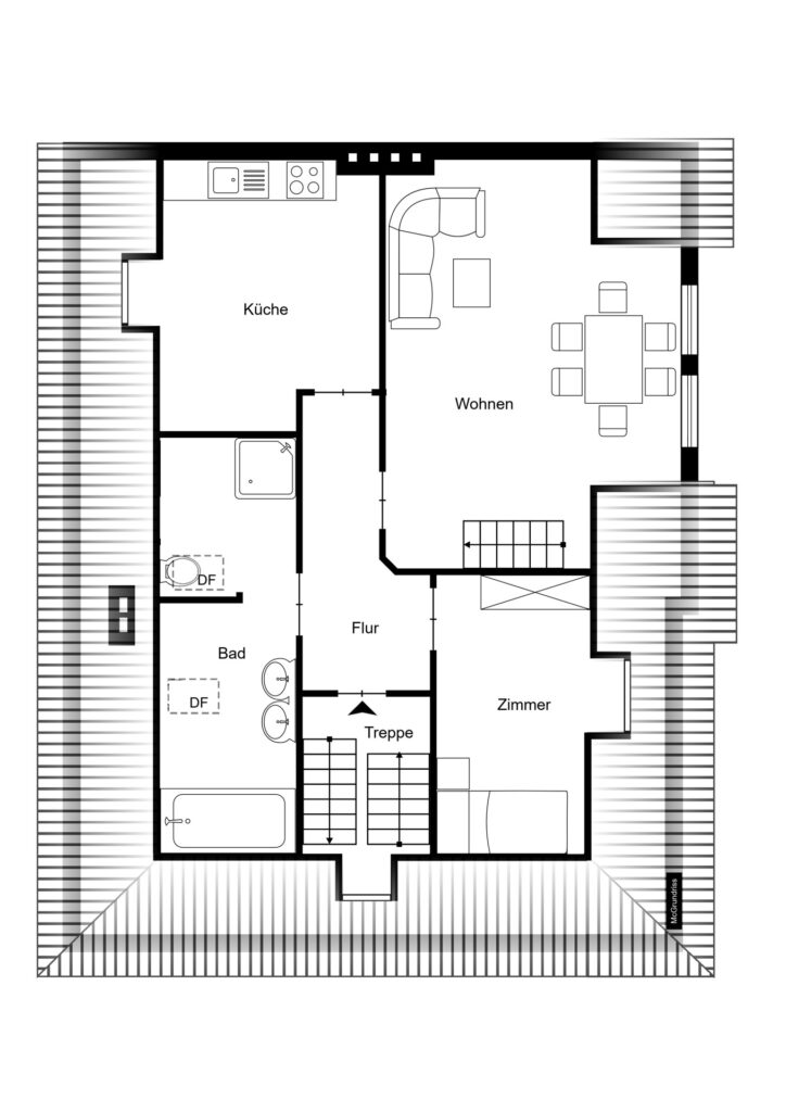
Die Wohnungen im Erd- und Obergeschoss sind identisch geschnittene, großzügige 4-Zimmer-Wohnungen. Jede Einheit verfügt über ein Tageslicht-Gäste-WC sowie ein modernes Badezimmer mit Dusche, welches ebenso mit einem Tageslichtfenster ausgestattet ist. Das Badezimmer im 1. Obergeschoss wurde zudem 2023 modernisiert. Die helle Küche bietet einen schönen Blick ins Grüne und lädt zum Verweilen ein.
Im Dachgeschoss befindet sich eine bereits teilgenehmigte Wohnung. Der Ausbau überzeugt durch ein großzügig geschnittenes Wohnzimmer sowie ein Schlafzimmer. Darüber hinaus besteht Zugang zum bereits ausgebauten Spitzboden, der sich ideal als Hobbyraum oder zusätzlicher Stauraum nutzen lässt. Das geräumige Badezimmer ist mit Dusche und Badewanne ausgestattet. Eine separate Küche komplettiert das Raumangebot dieser besonderen Wohneinheit.
Hinter dem Haus erstreckt sich ein schöner Gartenbereich, der von den Bewohnern gemeinschaftlich genutzt werden kann.
Im Souterrain befinden sich außerdem zwei kleine Ein-Zimmer-Apartments mit einer Fläche von ca. 28 m² bzw. 15 m². Diese Einheiten sind bislang nicht genehmigt, bieten jedoch bei möglicher Nachgenehmigung ein attraktives Ausbaupotenzial. Die Wohnfläche vom Erdgeschoss bis einschließlich zum Dachgeschoss beläuft sich somit auf ca. 261 m².
Interessant ist außerdem die bisher nicht ausgeschöpfte bebaubare Fläche. Da die Baugrenze weiter hinten verläuft, könnte man bspw. ideal Balkone an den Wohnungen ergänzen.
Lage
Die Immobilie liegt in der begehrten Bonner Südstadt, unweit des beliebten Poppelsdorfer Viertels. Das Objekt liegt in einer ruhigen Anliegerstraße mit gepflegtem Wohnumfeld und hoher Lebensqualität. In fußläufiger Entfernung befinden sich zahlreiche Einkaufsmöglichkeiten, Cafés, Restaurants sowie die Universität Bonn und das sehenswerte Poppelsdorfer Schloss.
Dank der zentralen Lage ist die Bonner Innenstadt in wenigen Minuten erreichbar. Die öffentliche Verkehrsanbindung ist hervorragend: Bus- und Bahnlinien sowie der Hauptbahnhof Bonn liegen in unmittelbarer Nähe. Über die A565 und B9 sind Köln und der Flughafen Köln/Bonn schnell erreichbar.
Diese Lage vereint stadtnahes Wohnen, kurze Wege und ruhiges Ambiente. Genau richtig für alle, die das Leben im Herzen Bonns genießen möchten.
Ausstattung
– Garten
– nachträgliche Dachdämmung
– zentrale Lage
– umfangreiche Sanierung in 1999
– teilweise Schallschutzfenster
– Möglichkeit anzubauen
Weiter Details
- Grundstücksfläche: 621 m²
- Anzahl Etagen: 2,0
- Kaufpreis: 849.000 €
- Courtage: 4,76 % inkl. MwSt
- X-fache (Kaufpreis bez. auf Jahresmiete): 20.92
- Aktuelle Mieteinnahmen: 40.590 €
- Vermietbare Fläche: 304 m²
- Wohneinheiten: 3
- Art der Ausstattung: Standard
- Befeuerung: Gas
- Baujahr: 1937
- Zustand: gepflegt
- Immobilie ist verfügbar ab: nach Vereinbarung
Wichtiger Hinweis
Die auf dieser Website dargestellten Immobilienangebote stammen teilweise von externen Maklerunternehmen innerhalb der Westdeutsche Immobilienbörse e.V. - Partnergemeinschaft und werden automatisiert über eine Schnittstelle eingebunden. Die Xcorp Immobilien GmbH ist in diesen Fällen nicht Anbieterin im Rechtssinne, sondern stellt lediglich die technische Plattform zur Verfügung. Für die Richtigkeit, Vollständigkeit und Aktualität der Angaben übernimmt die Xcorp Immobilien GmbH keine Verantwortung.














