Zu Verkaufen €196.000 - DG-Wohnung
Objektbeschreibung
Angeboten wird eine sofort bezugsfreie Dachgeschoss-Wohnung in einer Denkmalschutz-Immobilie in Köln-Mülheim.
Ihr neues Zuhause befindet sich im 4. Obergeschoss, was gleichzeitig bedeutet, dass Sie keine Nachbarn über sich haben werden. Lediglich eine weitere Wohnung befindet sich auf dieser Etage.
Die Wohnung ab sofort bezugsfrei, sodass Sie entweder bequem und ohne Eigenbedarfskündigung selbst einziehen können oder im Rahmen der Neuvermietung sich Ihren neuen Mieter selbst aussuchen können – gerne helfen wir Ihnen hierbei!
Aber kommen Sie doch erst einmal herein!
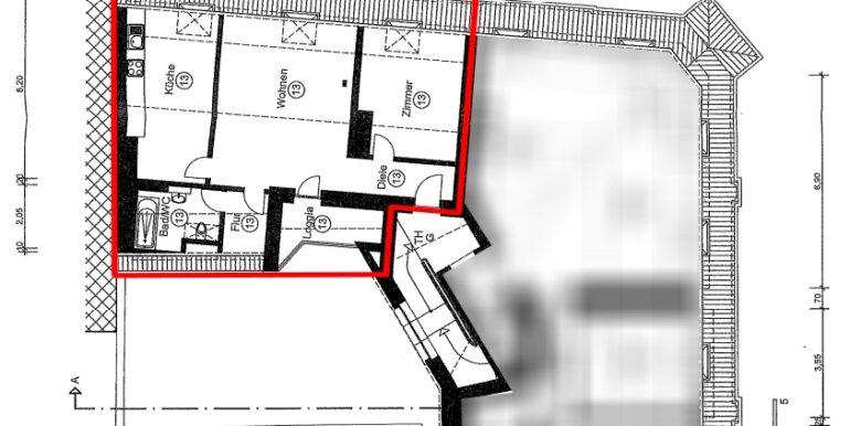
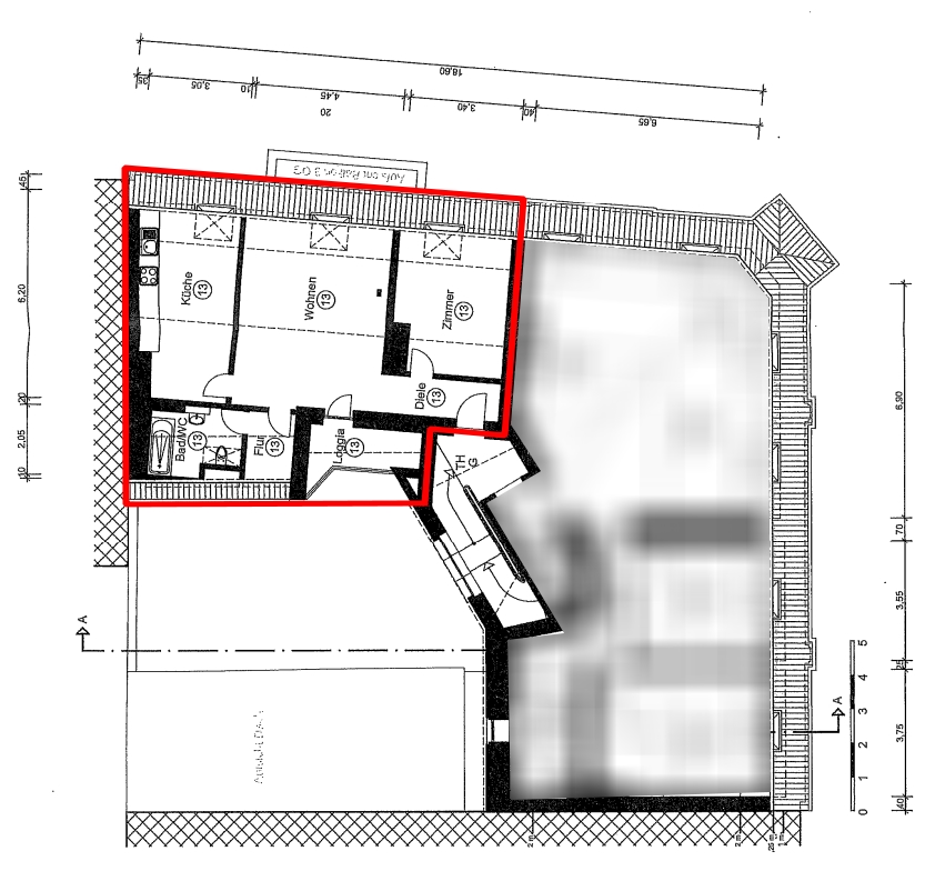
Nach Betreten der Wohnung finden Sie folgende Räume vor:
*Diele,
*Schlafzimmer,
*Küche,
*Badezimmer mit kleinem Vor-Flur,
*Balkon.
Ihrer neuen Eigentumswohnung sind folgende Sondernutzungsrechte zugeordnet:
*Kellerraum
Die Miteigentumsanteile belaufen sich auf 65,59 von 1.000.
Die Instandhaltungsrücklage der Eigentümergemeinschaft betrug zum 31.12.2023: 10.420,77 €. Der Anteil dieser Wohnung an der Gesamt-Instandhaltungsrücklage des Gebäudes beträgt 683,52 € (Stand 31.12.2023).
Das monatliche Hausgeld für das Wirtschaftsjahr 2025 betrug 285,95 €. Hiervon können rd. 180 € auf einen etwaigen Mieter umgelegt werden. Die übrigen, nicht-umlagefähigen rd. 106 € setzen sich zusammen aus Verwaltergebühr (rd. 29 €), Reparaturen & Bankgebühren (rd. 22 €) und Zuführung in die Instandhaltungsrücklage (rd. 55 €).
Hinweis: Für denkmalgeschützte Gebäude können unter bestimmten Voraussetzungen gemäß § 7i EStG steuerliche Abschreibungsmöglichkeiten bestehen. Bitte lassen Sie sich hierzu individuell von Ihrem Steuerberater beraten.
Lage
Dieses denkmalgeschützte Gebäude befindet sich im lebendigen und zugleich aufstrebenden Stadtteil Mülheim. Der Standort besticht durch eine perfekte Mischung aus urbanem Flair und entspannter Wohnatmosphäre. Zahlreiche Einkaufsmöglichkeiten, Cafés und Restaurants sind bequem zu Fuß erreichbar, wodurch das Viertel besonders attraktiv wird.
Mülheim ist bekannt für seine lebendige Kunst- und Kulturszene, was es zu einem idealen Umfeld für Kulturliebhaber macht. Die Anbindung an den öffentlichen Nahverkehr ist hervorragend, mit mehreren Bus- und Bahnlinien in unmittelbarer Nähe, die schnelle Verbindungen in alle Stadtteile bieten. Pendler profitieren zudem von der Nähe zu den Autobahnen.
Für Naturfreunde bietet die Nähe zum Rhein sowie zu Parks und Grünflächen viele Möglichkeiten zur Erholung und Freizeitgestaltung. Die optimale Lage des Gebäudes verbindet die Vorzüge des urbanen Lebens mit einer hohen Lebensqualität und vielfältigen Freizeitangeboten.
Ausstattung
Überzeugen Sie sich selbst:
+ Sofort bezugsfrei
+ Balkon
+ Modern ausgestattet
+ Offene Küche (ohne Einbauküche)
+ Dachfenster sorgen für viel Tageslicht und ermöglichen gleichzeitig das problemlose Platzieren von Möbeln
+ Waschmaschinenanschluss in der Wohnung erspart lästiges Treppensteigen
+ Eigene Gastherme – Gasanbieter kann selber ausgewählt werden
+ Kellerraum
– Tausch der Gastherme wird empfohlen
– Kein zugeordneter PKW-Stellplatz. Kostenlose Parkmöglichkeiten in der direkten Nähe
Weiter Details
- Zimmer insgesamt: 2
- Heizungsart: Etagenheizung
- Etage: 4
- Hausgeld: 285,95 €
- Kaufpreis: 196.000 €
- Courtage: 3,57%
- Balkone: 1
- Befeuerung: Gas
- Baujahr: 1902
Wichtiger Hinweis
Die auf dieser Website dargestellten Immobilienangebote stammen teilweise von externen Maklerunternehmen innerhalb der Westdeutsche Immobilienbörse e.V. - Partnergemeinschaft und werden automatisiert über eine Schnittstelle eingebunden. Die Xcorp Immobilien GmbH ist in diesen Fällen nicht Anbieterin im Rechtssinne, sondern stellt lediglich die technische Plattform zur Verfügung. Für die Richtigkeit, Vollständigkeit und Aktualität der Angaben übernimmt die Xcorp Immobilien GmbH keine Verantwortung.












