Zu Verkaufen €670.000 - Produktion
Objektbeschreibung
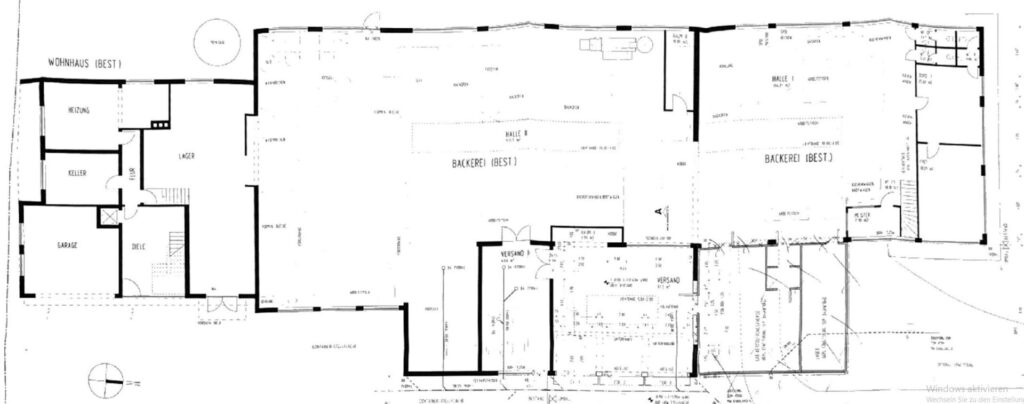
Bei dem angebotenen Objekt handelt es sich um eine vielseitig nutzbare, gewerblich geprägte Immobilie aus dem Baujahr 1974, die bislang als Bäckereibetrieb genutzt wurde. Die Anlage umfasst eine klassische Bäckerei mit angeschlossenen Produktions-, Verkaufs- und Lagerflächen sowie ergänzende Büroeinheiten und einen integrierten Wohnanbau.
Die Gesamtfläche des Objekts beträgt ca. 1.433,78 m² auf einem großzügigen Grundstück von 4.789 m², wodurch sowohl ausreichend Betriebsfläche als auch Erweiterungs- bzw. Nutzungspotenzial gegeben ist.
Die Immobilie befindet sich in einem gewachsenen Umfeld und eignet sich ideal für Investoren, Projektentwickler oder Betreiber aus dem Lebensmittelhandwerk. Die vorhandene bauliche Struktur ist optimal auf die Nutzung als Bäckerei ausgelegt und ermöglicht eine kurzfristige Wiederaufnahme des Betriebs oder eine Umnutzung nach individuellen Konzepten.
Ergänzend zur gewerblichen Hauptnutzung stehen funktional ausgestattete Büroflächen zur Verfügung, die ausreichend Raum für Verwaltung, Organisation und Personalplanung bieten. Der zusätzliche Wohnanbau eröffnet weitere Nutzungsmöglichkeiten – beispielsweise für Betriebsinhaber, Mitarbeiter oder als separate Vermietungseinheit.
Lage
Die Stadt Neuenrade liegt im südlichen Teil des Märkischen Kreises in Nordrhein-Westfalen und ist eingebettet in die waldreiche Mittelgebirgslandschaft des Sauerlands. Mit der Postleitzahl 58809 gehört Neuenrade zur wirtschaftlich und infrastrukturell gut angebundenen Region Südwestfalen. Neuenrade befindet sich in verkehrsgünstiger Lage zwischen den Städten Werdohl, Altena und Balve. Über die nahegelegenen Bundesstraßen B229 und B236 besteht eine gute Anbindung an das regionale und überregionale Straßennetz. Die Autobahnen A45 (Sauerlandlinie) und A46 sind in kurzer Fahrzeit erreichbar und ermöglichen eine zügige Verbindung zu den Ballungsräumen Ruhrgebiet, Köln/Bonn sowie Siegerland. Der Bahnhof Neuenrade bietet Anschluss an den regionalen Schienenverkehr (RB-Linie Richtung Fröndenberg/Unna), wodurch eine Anbindung an das Ruhrgebiet und umliegende Städte gewährleistet ist. Der öffentliche Personennahverkehr ist durch Buslinien ergänzend ausgebaut. Die Stadt zeichnet sich durch ihre naturnahe Lage mit hohem Erholungswert aus. Umgeben von ausgedehnten Wäldern, Wander- und Radwegen bietet Neuenrade eine attraktive Kombination aus ruhigem Wohnen, naturnaher Freizeitgestaltung und dennoch guter Erreichbarkeit zentraler Wirtschaftsregionen. Gleichzeitig verfügt der Ort über eine solide Infrastruktur mit Einkaufsmöglichkeiten, medizinischer Versorgung, Bildungs- und Betreuungseinrichtungen sowie einem vielfältigen Vereins- und Kulturleben.
Sonstiges
Flächen in m² wurden den Grundrissen entnommen + der Flächenberechnung
Grundbesitzabgaben gebäudeabhängig
Grundsteuer B Gesamt = 1479,79€ p.a
Straßenreinigung: 124,20€ p.a
Niederschlagswasser: 3223,75€ p.a
Weiter Details
- Grundstücksfläche: 4.789 m²
- Zimmer insgesamt: 8
- Anzahl Stellplätze: 2
- Heizungsart: Zentralheizung
- Erbpacht: 5.040 €
- Kaufpreis: 670.000 €
- Courtage: 3.57 %
- Anzahl Außenstellplätze: 1
- Anzahl Garagenstellplätze: 1
- Nutzfläche: 1.433,78 m²
- Gesamtfläche: 1.433,78 m²
- Lagerfläche: 120,61 m²
- Bürofläche: 78,11 m²
- Befeuerung: Gas
- Baujahr: 1974
- Zustand: gepflegt
- Immobilie ist verfügbar ab: sofort
Wichtiger Hinweis
Die auf dieser Website dargestellten Immobilienangebote stammen teilweise von externen Maklerunternehmen innerhalb der Westdeutsche Immobilienbörse e.V. - Partnergemeinschaft und werden automatisiert über eine Schnittstelle eingebunden. Die Xcorp Immobilien GmbH ist in diesen Fällen nicht Anbieterin im Rechtssinne, sondern stellt lediglich die technische Plattform zur Verfügung. Für die Richtigkeit, Vollständigkeit und Aktualität der Angaben übernimmt die Xcorp Immobilien GmbH keine Verantwortung.




















