Zu Verkaufen €435.000 - Maisonette-Wohnung
Objektbeschreibung
Die Wohnung wurde seit der damaligen Fertigstellung von den Eigentümern selbst bewohnt und liebevoll ausgestattet und gepflegt.
Sie verwöhnt mit großzügigem Zuschnitt und bietet
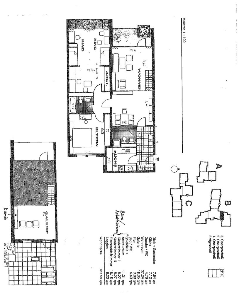
-einen sehr attraktiven Wohn-/Essraum mit Loggia
-Kamin auf der Galerie
-2 Schlaf- bzw. Arbeitszimmer, davon 1 mit Loggia
-1 Wannenbad mit WC
-1 Duschbad mit WC
+ eine wunderschön angelegte Dachterrasse mitsamt Sonnenschutz!
Feste Einbauten sind im Kaufpreis enthalten.
Die Wohnung hat geschmacksabhängigen Renovierungsbedarf.
Zur Wohnung gehört ein Kellerraum. Den Hausbewohnern stehen gemeinsam Räume zur Wäschepflege zur Verfügung sowie ein Fahradabstellraum in der
Tiefgarage. Hier kann optional ein KFZ-Stellplatz angemietet werden.
Lage
Schöner-Wohnen-Quartier in Erkrath-Unterfeldhaus!
Das in Mitte der 1970er bis in 1980er Jahre errichtete Wohnquartier ist mit seiner zeitlos schönen Architektur auf parkartig angelegtem Grundstück bis heute eine der schönsten Wohnlagen im Südosten von Düsseldorf.
Erkrath-Unterfeldhaus bietet seinen Bewohnern eine erstklassige Infrastruktur.
Der bestens sortierte Einzelhandel und Dienstleister aller Art finden Sie im nur wenige hundert Meter entfernten Stadtteilzentrum Neuenhausplatz.
Düsseldorf, Essen, Köln, Wuppertal sind direkt über die BABs sehr schnell zu erreichen.
Zur Erholung laden der nahegelegene Unterbacher See ein und natürlich das Neandertal und das Bergische Land.
Willkommen in Erkrath-Unterfeldhaus!
Sonstiges
Energieausweis: Verbrauchsausweis gültig von: 15.09.2019
Endenergieverbrauch Wärme: 184 kWh/(m²a)
Wesentliche Energieträger Heizung: Befeuerung Erdgas leicht
Energieeffizienzklasse: F
Baujahr: 1975
Weiter Details
- Zimmer insgesamt: 3
- Heizungsart: Zentralheizung, Fußbodenheizung
- Anzahl Etagen: 4,0
- Etage: 3
- Zusatzinformation zur Lage: Unterfeldhaus
- Hausgeld: 693 €
- Kaufpreis: 435.000 €
- Courtage: 3.57 %
- Separate WCs: 1
- Terrassen: 1
- Befeuerung: Gas
- Küche: Einbauküche
- Baujahr: 1975
- Zustand: nach Vereinbarung
- Immobilie ist verfügbar ab: nach Absprache
Wichtiger Hinweis
Die auf dieser Website dargestellten Immobilienangebote stammen teilweise von externen Maklerunternehmen innerhalb der Westdeutsche Immobilienbörse e.V. - Partnergemeinschaft und werden automatisiert über eine Schnittstelle eingebunden. Die Xcorp Immobilien GmbH ist in diesen Fällen nicht Anbieterin im Rechtssinne, sondern stellt lediglich die technische Plattform zur Verfügung. Für die Richtigkeit, Vollständigkeit und Aktualität der Angaben übernimmt die Xcorp Immobilien GmbH keine Verantwortung.





