Zu Vermieten €1.290 - Bürohaus
Objektbeschreibung
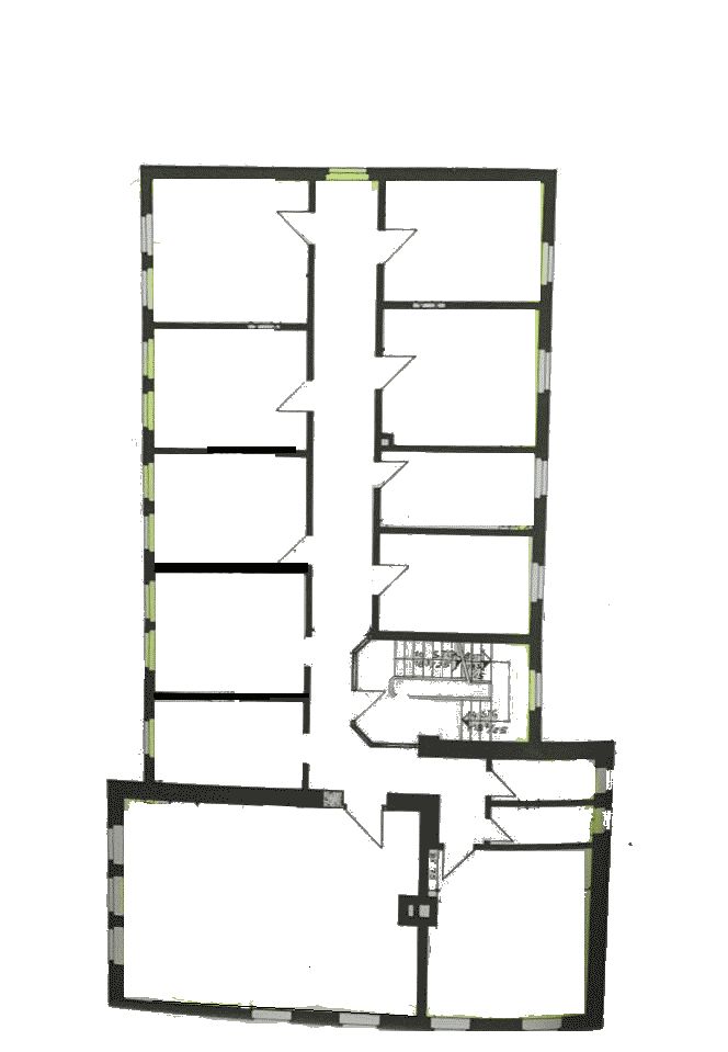
Die Büro- / Praxisetage befindet sich im 1. Obergeschoss des Hauses. Im Erdgeschoss befindet sich eine Orthopädie Praxis und im Untergeschoss eine Physiotherapie Praxis. Die Büro-/ Praxisetage teilt sich auf in 7 Behandlungsräumen, Küche, 2x WC und Wartezimmer.
Lage
Die Büro-/ Praxistage liegt in zentraler und verkehrsgünstiger Innenstadtlage von Werl. Einkaufsmöglichkeiten, die Werler Fußgängerzone Schulen und ein Kindergarten befinden sich in unmittelbarer Nähe. Mit dem Auto erreichen Sie in wenigen Fahrminuten die A445 Richtung Arnsberg sowie sie A44 Richtung Dortmund bzw. Kassel.
Sonstiges
Wir bitten sich bei Interesse mit einer s c h r i f t l i c h e n Anfrage über unsere Homepage oder das Internetportal an uns zu wenden. Wir senden Ihnen dann umgehend ein Exposé per Email zu. Darin enthalten sind die Anschrift der Immobilie und die Möglichkeit, die Immobilie bereits virtuell mit einem 360-Grad-Rundgang zu besichtigen.
Wir bitten Sie, sich anhand dieser Möglichkeit einen ersten Eindruck zu verschaffen. Bei näherem Interesse zeigen wir Ihnen die Immobilie gerne bei einer persönlichen Besichtigung.
Weiter Details
- Zimmer insgesamt: 11
- Heizungsart: Zentralheizung
- Anzahl Etagen: 2,0
- Etage: 1
- Kaltmiete: 1.290 €
- monatl. Betriebs-/Nebenkosten: 500 €
- Courtage: 2.38 MM
- Kaution: 2.580 €
- Nutzfläche: 215 m²
- Gesamtfläche: 215 m²
- Bürofläche: 197 m²
- Befeuerung: Gas
- Baujahr: 1887
- Zustand: gepflegt
- Immobilie ist verfügbar ab: nach Vereinbarung
Wichtiger Hinweis
Die auf dieser Website dargestellten Immobilienangebote stammen teilweise von externen Maklerunternehmen innerhalb der Westdeutsche Immobilienbörse e.V. - Partnergemeinschaft und werden automatisiert über eine Schnittstelle eingebunden. Die Xcorp Immobilien GmbH ist in diesen Fällen nicht Anbieterin im Rechtssinne, sondern stellt lediglich die technische Plattform zur Verfügung. Für die Richtigkeit, Vollständigkeit und Aktualität der Angaben übernimmt die Xcorp Immobilien GmbH keine Verantwortung.

