Zu Verkaufen €219.000 - Etagenwohnung
Objektbeschreibung
Hier investieren Sie in die Zukunft! Ob als barrierefreie Wohnung zur Selbstnutzung im Zentrum von Jüchen oder als Investment mit hervorragender Vermietbarkeit. Hier haben Sie perspektivisch alle Optionen.
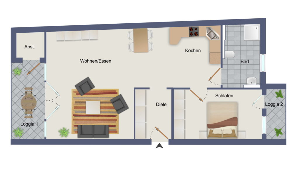
Moderne Etagenwohnung in sehr gepflegter Einheit und zentraler Lage. Mittelpunkt der individuell aufgeteilten Wohnung ist der große Wohn-Essbereich (über 40m²) mit hellen Fensterflächen am Balkon zur Gartenseite. Außerdem verfügt die Wohnung über eine offene Küche, ein helles Bad mit Dusche und ein separates Schlafzimmer.
Die Wohnung und das Objekt wurden bereits bei der Erstellung sehr hochwertig ausgeführt. Barrierefreier Zugang mit automatischer Haustür, Parkettböden, Klimaanlage, Einbauküche, großer Aufzug, Abstellräume auf der selben Etage, Gemeinschaftsgarten uvm. sind hier der Standard.
Lage
Das Wochenende oder den Feierabend auf dem großen und ruhigen Balkon genießen – im Herzen des Stadtteils und in unmittelbarer Nähe zum Marktplatz – was will man mehr! Hier bietet sich die seltene Chance zum Erwerb eines soliden Investments in bester Lage im Zentrum von Jüchen.
Im direkten Umfeld gibt es alle Geschäfte des täglichen Bedarfs sowie Ärzte, Banken etc. – alles gut und zu Fuß erreichbar. In wenigen Minuten sind Sie in der City von Grevenbroich, in Mönchengladbach, in der Kölner City usw. Über die BAB A46/A540/A61 oder mit dem ÖPNV erreichen Sie auch die umliegenden Städte sehr schnell.
Ausstattung
Sie suchen das solide Investment – seniorengerecht – barrierefrei – in bester und ruhiger Lage mitten im Ort – mit großem Balkon – mit Topausstattung – gut vermietbar? Dann unbedingt hier besichtigen!
Auf einen Blick!
barrierefreie und seniorengerechte Wohnung in gepflegter Wohnanlage
mit Aufzug und funkgesteuerter automatischer Haustüranlage
in bester Lage im Zentrum von Jüchen und fußläufig zum Marktplatz
beste Infrastruktur vor Ort und hervorragende Anbindung an den ÖPNV und das BAB-Netz
ideal zur Selbstnutzung
aber alternativ auch gut vermietbare Wohnung mit langfristig erzielbaren soliden Mieteinnahmen
Wohnung im ersten Obergeschoss mit zwei Balkonen
Blick vom Balkon am WZ zur gepflegten Gartenanlage mit gemeinschaftlicher Nutzung
Zwei-Raum-Wohnung mit insgesamt 74m² Wohnfläche
in gutem und topgepflegtem Zustand
individuelle, großzügige und moderne Aufteilung mit extrahohen Decken
hochwertige Ausstattung wie z.B. Parkettböden, Einbauküche, Klimaanlage etc.
hell gefliestes Badezimmer mit Duschbad
sehr gepflegtes Haus und Gemeinschaftsanlagen
Sonstiges
Das sehr gepflegte Objekt ist hochwertig ausgeführt und zeitgemäß ausgestattet. Aus heutiger Sicht entspricht der Standard absolut den aktuellen Wohnansprüchen. Eine Modernisierung des Bades könnte aber eventuell eine Option sein. Die Wohnung bietet auch noch genug Raum zur Realisierung der eigenen Vorstellungen.
Eine gute Gelegenheit zum Erwerb einer interessanten Immobilie mit zeitgemäßer Ausstattung in einer gepflegten Anlage. Diese Wohnung ist perfekt für Selbstnutzer mit dem Focus auf die seniorengerechte Ausführung. Für Kapitalanleger kann dieses Objekt aufgrund seiner guten Vermietbarkeit ohne großen Verwaltungsaufwand aber ebenfalls sehr lukrativ sein.
Deshalb unbedingt besichtigen!
Weiter Details
- Zimmer insgesamt: 2
- Heizungsart: Zentralheizung
- Anzahl Etagen: 2,0
- Etage: 1
- Zusatzinformation zur Lage: Mitte
- Kaufpreis: 219.000 €
- Courtage: 3.57 %
- Nutzfläche: 7 m²
- Wohneinheiten: 26
- Art der Ausstattung: gehoben
- Befeuerung: Gas
- Baujahr: 1999
- Zustand: neuwertig
- Immobilie ist verfügbar ab: nach Vereinbarung
Wichtiger Hinweis
Die auf dieser Website dargestellten Immobilienangebote stammen teilweise von externen Maklerunternehmen innerhalb der Westdeutsche Immobilienbörse e.V. - Partnergemeinschaft und werden automatisiert über eine Schnittstelle eingebunden. Die Xcorp Immobilien GmbH ist in diesen Fällen nicht Anbieterin im Rechtssinne, sondern stellt lediglich die technische Plattform zur Verfügung. Für die Richtigkeit, Vollständigkeit und Aktualität der Angaben übernimmt die Xcorp Immobilien GmbH keine Verantwortung.















